Информация к новости
- Просмотров: 654024
- Дата: 27 июля
<nofollow>27 июля</nofollow>’;document.body.appendChild(d);document.pnctLoadStarted=(new%20Date()).getTime();document.pnctCnclLoad=function(){document.pnctLoadStarted=0;pl=document.getElementById(‘pnctPreloader’);if(pl)pl.parentNode.removeChild(pl)};document.getElementById(‘pnctCancelBtn’).addEventListener(‘click’,function(e){e.preventDefault();document.pnctCnclLoad()});setTimeout(function(){var%20st=document.pnctLoadStarted;if(st>0&&((new%20Date()).getTime()-st>=14000)){document.pnctCnclLoad();alert(‘%D0%9A+%D1%81%D0%BE%D0%B6%D0%B0%D0%BB%D0%B5%D0%BD%D0%B8%D1%8E%2C+%D0%BF%D0%BE%D0%B8%D1%81%D0%BA+%D0%BA%D0%B0%D1%80%D1%82%D0%B8%D0%BD%D0%BE%D0%BA+%D0%BD%D0%B5%D0%B4%D0%BE%D1%81%D1%82%D1%83%D0%BF%D0%B5%D0%BD.’)}},15000);var%20e=document.createElement(‘script’);e.setAttribute(‘type’,’text/javascript’);e.setAttribute(‘charset’,’UTF-8′);e.setAttribute(‘src’,’//postila.ru/post.js?ver=1&m=b&rnd=’+Math.random()*99999999);document.body.appendChild(e)})());»>—>
Трудно представить нашего человека без дачного участка в пригороде, но еще труднее — дачный участок без обустроенного туалета с красивым дизайном. Конечно, не каждый сможет оборудовать современный, сделанный по последнему слову техники санузел и подключить его к септику — это достаточно дорогое удовольствие, но вот построить туалет на даче своими руками — вполне.
Для того, чтобы претворить этот план в жизнь, вам обязательно понадобится чертеж дачного туалета со всеми необходимыми размерами. Это позволит вам скрупулезно следовать намеченному плану и выполнить постройку безошибочно, даже не имея особого плотницкого опыта. Отлично вписавшийся в общий дизайн вашего участка туалет будет радовать глаз не меньше, чем собственно жилой домик, да и позволит вам значительно повысить уровень вашего комфорта.
Существует достаточно много разновидностей дачных туалетных домиков. Несмотря на единый функционал, они очень сильно отличаются между собой способом постройки. Форму определяете вы сами, а общее количество использованного материала напрямую зависит от чертежа дачного туалета.
Конечно, всегда можно купить дачный туалет и закрыть вопрос, облегчив содержимое своего кошелька. Такой путь также имеет право на существование, но всегда интересно ведь сделать все своими руками,верно? Пусть даже и по заранее подготовленным чертежам с фото и размерами.
Для удобства мы решили классифицировать все деревянные дачные туалеты на виды, взяв за основу распространенную архитектурную форму.
Скворечник
Скворечник — один из самых простых типов дачного туалета с односкатной крышей, который позволит вам сэкономить на материалах, но сильно урезать комфорт при использовании. Простота изготовления обусловливает довольно шаткую конструкцию и легкую продуваемость ветром. Такой дачный туалет обычно используется в качестве летнего варианта, но в случае с сильными осадками стены могут быть пропускать влагу. Один из немногочисленных плюсов — возможность размещения на крыше напорного бака.
12 чертежей дачного туалета типа «Скворечник»
Избушка
Избушка — самая сложная архитектурная форма дачного туалета. Потребует от вас изрядного количества материалов. Сэкономить на них точно не получится, так как требует большого количества подрезки. Зато полученная граненая форма позволяет сохранить тепло в холодное время года и справиться с неблагоприятными климатическими условиями. Популярность избушки как варианта дачного туалета обусловлена большим количеством дизайнерских вариаций, позволяющих вписать постройку в интерьер любого участка. Многие называют этот вид дачного домика иначе — теремок.
8 чертежей дачного туалета типа «Избушка»
Самый распространенный, пожалуй, вариант
А вот здесь бока немного скошены — впрочем, впечатление это отнюдь не портит, скорее, наоборот, придает постройке оригинальный и более современный вид.
Шалаш
Шалаш — простая архитектурная форма с двускатной крышей, подчеркнутая прочность и стойкость к воздействию ветром и осадкам выделяют эту форму дачного туалета. Кто-то называет ее самой экономной с точки зрения расхода материалов, однако эта экономия имеет место быть только в случае с малогабаритной постройкой. В противном случае ни о какой экономии речь не идет.
4 чертежа дачного туалета типа «Шалаш»
Домик
Домик — любопытная форма дачного туалета, допускающая самые разнообразные дизайнерские изыски.В сравнении со всеми остальными вышеперечисленными формами домик представляется самым теплым и комфортным вариантом. К тому же он отличается повышенной прочностью, а затраты земли и материалов такие же, как при постройке менее теплого и комфортного скворечника.
6 чертежей дачного туалета типа «Домик»
Встречаются и такие чертежи. По этой схеме удалось собрать туалет всего за 7500 рублей. Как? Смотрите ход постройки и результат здесь
Также дачный туалет в зависимости от площади, им занимаемой, и особенностей постройки, может быть как одноместным, так и двухместным.
Пример двухместного туалета
Пристроенные к гаражу либо любому-другому зданию — более сложные туалетные конструкции, не столь часто востребованные дачниками.
Туалет с душем
Комбинированные с душем — особый вид дачных домиков, в которых присутствует не только уборная, но и душ. Резонность подобных построек не нуждается в пояснениях: все-таки в условиях изнурительной работы на участке возможность принять тут же на месте душ важна не меньше, чем справить свои естественные потребности.
Конечно, такие комбинированные туалеты требуют больших вложений с точки зрения расхода материалов, однако итоговый результат, несомненно, порадует взор.
Разумеется, все приведенные варианты являются в первую очередь наглядным образцом того, как должен строиться дачный туалет. Используя уже готовые чертежи, вы сможете построить дачный туалет своими руками без каких-либо архитектурных просчетов. Не бойтесь экспериментировать и добавлять в проекты некоторые изменения — только в таком случае вы получите яркий и комфортный результат и то самое чувство удовлетворения, которое всегда приходит после хорошо выполненного дела!
Реальный проект: Дачный туалет своими руками за 7500 руб — 22 фото—> ВернутьсяКомментариев: 0 —><label>Cодержание статьи!</label>
Ни какой дачный участок не может обойтись без туалета. Для комфортного прибывания на дачном участке, едва ли не в первую очередь приходится строить дачный туалет. Причины вполне понятны и не вызывают удивления. Вопрос в другом: что лучше – купить готовый туалет или сделать его самому, доказав своей семье, что ее глава неплохо умеет работать руками. В данной статье мы рассмотрим этот вопрос более подробно. Ведь на «Красивой даче» должен быть и красивый туалет, сделанный своими руками, как в принципе и все что делается на даче.
Деревянный туалет в окружении зелени и цветов.
Виды клозетов для загородных условий
К строительству уличного туалета на дачном участке, каждый подходит индивидуально, подбирая чертежи, размеры и дизайн самостоятельно. Существуют различные методики устройства туалетов на загородном участке, которые применяются в местах, где отсутствует канализация. Все они полностью автономны и не требуют наличия водопровода и сложных канализационных сооружений. Некоторые из них достаточно просто купить в магазине. Другие нужно соорудить на участке по установленным правилам.
Дачные туалеты бывают следующих видов:
- люфт-клозет;
- биотуалеты.
- пудр-клозет;
- туалет с выгребной ямой;
Обычный дачный туалет, имеющий яму для экскрементов, выглядит как кабинка, установленная над ямой, глубиной не менее 1,5 м. Кабинка изготавливается из любого материала от досок до пластика. Поверхность стен и дна септика укрепляется во избежание обвала. По мере необходимости нечистоты удаляются. Место для сидения устраивается в виде стула или просто делается отверстие в полу.
Туалет на даче может выглядеть очень оригинально.
Туалет с выгребной ямой — это, наверное, самый привычный, легкий в изготовлении и широко используемый на просторах нашей страны тип дачного туалета. Перед началом работ обязательно продумайте весь проект, начиная с типа туалета, наиболее устраивающего по цене, срокам и качеству и заканчивая местом его расположения.
Туалет с выгребной ямой.
Пудр-клозет. Этот тип отличается от предыдущего отсутствием каких-либо углублений в земле. Вместо этого под место для сидения устанавливается любая подходящая емкость. По окончании каждого пользования, экскременты обильно посыпаются торфом или обычной золой. Процесс похож на припудривание. Отсюда и такое название. Емкость имеет вентиляцию, выходящую наружу. По мере наполнения содержимое выносят в яму для компоста, где, благодаря торфяной смеси, оно перерабатывается в прекрасное органическое удобрение.
Аккуратный туалет из строганной доски.
Туалет типа люфт-клозет можно устроить прямо в доме, около внешней стены. Яма должна частично заходить под дом в этом месте и иметь уклон наружу. Все внутренние поверхности септика должны быть полностью герметичными. Унитаз непосредственно соединяется с ямой при помощи канализационной трубы небольшой длины. Снаружи имеется люк для откачки содержимого. Такой вариант можно устроить в местах, где возможно организовать вывоз отходов на ассенизаторской машине.
Туалет типа пудр-клозет.
Биотуалет – это устройство, изготовленное промышленным способом, оборудованное герметичным ведром с сиденьем сверху. Экскременты в нем нейтрализуются при помощи биореагентов, которые засыпаются внутрь.
Химический биотуалет, в отличии от предыдущего, применяются химические вещества для разложения отходов, что не позволяет использовать их как удобрения в дальнейшем на своем земельном участке.
Торфяной туалет объединяет в себе особенности биотуалета и пудр-клозета. Имеет вид унитаза, оборудованного емкостью с торфом. Каждый раз вместо воды из емкости сыпется торф. Отходы скапливаются в ведре и могут быть применены как удобрение.
Обратите внимание! Экскременты, переработанные с помощью естественных биокомпонентов, являются прекрасным удобрением. Их необходимо утилизировать в яму для компоста, в целях дальнейшего использования на своем дачном участке.Цвет деревянного туалета может гармонировать с окружающим ландшафтом.
Любой из этих видов имеет право на существование. Тем не менее, большинство дачников копают яму и строят обычный дачный туалет. Чертежи, размеры всей конструкции и место установки необходимо определить заранее.
Оптимальное место на участке для сооружения туалета
Перед тем, как начать строить туалет на даче своими руками, необходимо определиться с местом. Это очень важно, так как грунтовые и поверхностные потоки воды могут разносить нечистоты на обширную территорию. Существует несколько общепринятых правил:
- расстояние от ямы с нечистотами до любого водного источника: колодцев или скважин, рек или ручьев полагается соблюдать не меньше 25 м. При этом, нельзя забывать про соседские источники. Если на участке есть перепады высот, то туалет строят в самой низшей точке;
- подвальные помещения или погреб должны находится на расстоянии более 12 м;
- баня или сауна — более 8 м;
- хозяйственные постройки с домашними животными — 4 м;
- деревья – 4 м, а кустарники – 1 м;
- от границы участка не менее 1 м;
- уровень грунтовых вод – важный аргумент в выборе типа туалета. Если они поднимаются выше уровня 2,5 м., то строить туалет с неизолированной выгребной ямой недопустимо. В этом случае необходимо выбрать один из альтернативных вариантов;
- дверь кабинки не должна открываться в сторону соседского участка.
Нужно учесть и объекты соседей при выборе места для строительства туалета на даче своими руками. Чертежи, размеры и ориентация строения – все должно браться во внимание. Если участок оформляется в едином дизайнерском стиле, то при выборе местоположения туалета немаловажное значение имеет и его интеграция в общую концепцию проекта.
Обратите внимание! При строительстве туалета на дачном участке всегда нужно учитывать преобладающие ветры в данной местности. Установка этого объекта с подветренной стороны может испортить весь отдых на природе из-за неприятного запаха, распространяющегося в сторону жилых построек.
Дачный туалет на даче своими руками: чертежи, размеры
Если, в результате всех раздумий и вычислений, решено строить туалет с выгребной ямой, то делать это нужно в определенной последовательности.
- Выбирается оптимальное место по вышеизложенным правилам: перед началом строительства дачного туалета проверьте расстояние до водяных объектов — скважин, колодца. Учтите, что по требованиям СанПиН минимальное расстояние до этих объектов — 50 метров. Также нужно замерить расстояние до дома. Расстояние до частных домовладений – минимум 8 метров. При сложном рельефе грунта на участке туалет нужно проектировать внизу участка, чтобы избежать попадания фекалий в грунтовые воды. Следите, чтобы размеры выгребной ямы точно соответствовали размерам туалета — не менее 1,5х1,5 м в ширину и около 2 м в глубину.
- Копается яма глубиной около 2 м. со сторонами 1,2 – 1,4 м: материалом для стен ямы могут служить не только кирпич, бетонные кольца или доски, обработанные антисептиком, но и старые шины или даже 200 литровая бочка без дна. Кирпичи кладутся сначала по шахматной схеме для создания фильтровальных отверстий. Верхние 6 — 7 рядов кладите всплошную. Для люфт-клозета яму обязательно загерметизировать, залив дно стяжкой из бетона.
- Делаются вентиляционные отверстия, отверстия, над которым будет установлен унитаз, а также отверстия для откачки содержимого.
- Сооружается каркас из брусков: для каркаса подойдут деревянные брусья размером до 8х8 см, меньшие размеры снижают прочность каркаса. Высота туалета обычно не менее 2,5 м, высота проема под дверь – 1,9 м. Стульчак изготавливают высотой в 40 см. Крышу туалепта необходимо покрыть влагонепроницаемым материалом. Каркас желательно установить на фундаменте любого типа. Установка туалета на грунте нежелательна, конструкция будет быстро загнивать от влаги и испарений.
- Навешиваются двери, устанавливаются окна: для навешивания двери достаточно 2-3 петли, очень важно предусмотреть запоры снаружи и изнутри – защелку, крючок, шпингалет или завертку. Для безопасности запор изнутри должен быть установлен так, чтобы его можно было открыть снаружи с помощью подручного инструмента – ножа или плоской палочки. Также желательно установить в стене миниатюрное застеклённое окошко для естественного освещения.
- Каркас обшивается досками, профнастилом или другим материалом: обшивать туалет можно любым материалом, главное, чтобы он был прочным и вписывался в дизайн участка. При необходимости стены внутри утепляются.
Обратите внимание! Для укрепления стен ямы можно использовать автомобильные покрышки большого диаметра. Они не позволят осыпаться стенкам и дадут воде свободно просочиться в грунт.Деревянный туалет расположен под высокими деревьями.
Подробные чертежи, размеры туалета на даче своими руками позволяют посчитать количество требуемого материала и показывают особенности монтажа всех элементов:
- каркас делают из брусков с размерами 100х50 мм. Он устанавливается на два параллельных бруса с сечением 150х150 мм. Они играют роль полозьев. Так как брусья соприкасаются с землей и непосредственно с ямой, их необходимо обработать антисептиком. При необходимости туалет утепляют пенопластом. Односкатную крышу закрывают любым материалом. Это может быть мягкая черепица, оставшаяся от строительства;
- габариты туалета обязательно имеются на чертежах. Чаще всего они такие: высота не менее 2 м., ширина – не менее 1,2;
- если туалет полностью деревянный, то все его стены изготавливаются из доски 100х50 мм. При этом, торцевая стена имеет форму прямоугольника, боковые – форму трапеции, а в фасадной стене большую часть занимает дверной проем. В ней же делается небольшое окно для вентиляции и освещения. Все готовые стены крепятся на каркасе с помощью гвоздей;
- полозья, обработанные антисептиком, соединяют. Для лучшей жесткости в них прорезают пазы глубиной 50 мм и шириной 150 мм;
- пол монтируют из досок 50х100 мм и зашивают листами ОСБ. При необходимости его утепляют пенопластом. Выгреб обустраивают в задней части туалета;
- остов двери делают из брусков 50х50 мм. Для жесткости бруски соединяют диагоналями. Снаружи дверь обшивают досками, а внутри плитами ОСБ;
- стропила для односкатной наклонной крыши делают из доски 100х50 мм. и запилами крепят к каркасу стен. Расстояние между соседними стропилами 40 см;
- древесину туалета можно обрабатывать антисептическими составами. В него можно провести электрические провода, что даст возможность устроить освещение.
Обратите внимание! При устройстве электроосвещения в туалете, установите выключатель на выходе из дома. Это избавит от необходимости искать его в темноте на улице.
Хотя строительство туалета на даче не является сложным делом, качеству работ необходимо уделить особое внимание. От этого зависит не только удобство использования объекта, но и его долговечность. Правильный выбор места строительства не только позволит избежать неприятностей с санитарным состоянием, но и придаст целостный и гармоничный вид всему участку.
ДомойСтроительство
Время, проводимое на даче, как правило, отличается сезонным характером и относительной непродолжительностью: обычно это 1-2 дня выходных и, если повезет, часть отпуска в известный период. В таких условиях вопрос комфортного быта если и не уходит на второй план, все равно приобретает несколько иной смысл. Речь сегодня пойдет, как ясно из названия, об уличном туалете — точнее, о его собственноручной постройке.
Туалет на дачном участке, даже если постройка жилого дома еще только в перспективе, должен быть возведен обязательно: потребности человеческого организма не знают бытовых условностей и могут заявить о себе в любой момент, даже если вы наведываетесь всего на пару часов, чтобы прополоть-полить грядки. Именно поэтому на новом участке всегда в первую очередь ставят туалет.
В самых общих чертах уличный туалет представляет собой компактную будку, где человек может не только уединиться, но и надежно укрыться от непогоды, а также некий объем, куда собираются продукты жизнедеятельности организма. Как правило, это обычная выгребная яма, достаточно глубокая и просторная, чтобы как можно реже обращаться за услугами (платными, к стати) ассенизатора.
Однако существуют и другие, конструктивно более сложные варианты. Именно по способу утилизации отходов и происходит основная классификация. Далее мы вернемся и расскажем о других типах уличных туалетов.
Сначала давайте обратимся к, так сказать, наружной части туалета, типах кабинки и способах их изготовления, наиболее пригодных для самостоятельной постройки.
Классификация по типу кабинки
Будка, или кабинка дачного туалета в большинстве случаев относится к одному из четырех типов:
- “Скворечник”,
- Избушка, или “теремок”,
- Шалаш,
- Домик.
Каждый из них обладает своими преимуществами и недостатками, как и материалы, используемые для их постройки — дерево, металлопрофиль, шифер, кирпич, а также их комбинации.
Планируя постройку туалета, вам не нужно придумывать самому его конструкцию: каждый тип уже давно разработан специалистами и многократно опробован, а чертежи доступны и содержат оптимальные размеры, позволяющие сохранить компактность и обеспечить при этом удобство пользования.
“Скворечник”
Начнем традиционно с самого, пожалуй, простого, а потому наиболеее распространенного варианта, называемого “скворечник” из-за определенного сходства с птичьим домиком: тот же вытянутый вверх параллелепипед со скошенной назад односкатной крышей.
Как можно судить по представленным чертежам и фотоснимкам, конструкция такого туалета проста и представлляет собой раму, обшитую подходящим материалом, с одностворчатой дверью в передней части. Для рамы чаще всего используют деревянный брус, из такого же бруса, либо меньшего сечения, делают диагональные распорки для придания жесткости конструкции, и затем все обшивают досками. На стыках досок традиционно набивают неширокие, 30-40 мм, планки-”нащельники”, чтобы не дуло из щелей, которые обязательно образуются со временем, как бы плотно вы ни подгоняли доски друг к дружке.
Использование стройматериалов
Дерево — наиболее доступный материал, который легко обрабатывается и не требует особых навыков либо специальных инструментов.
Другое дело металл: данный материал прекрасно подходит для наших целей, однако для монтажа рамы из профильной трубы потребуется сварочный аппарат и хорошие навыки электросварки. Обшивка же производится листами профнастила, которые крепятся на саморезы или вытяжные заклёпки. Тут не обойтись без электродрели, шуруповерта или заклёпочника.
Нередко выбирают “средний” вариант: деревянную раму обшивают металлическими листами либо металлическую раму — плитами ДСП или УСБ: часто определяющим фактором является наличие подходящих материалов, например, остатков от “большой” стройки.
Привычный шифер также иногда используют в качестве стен дачного туалета, по крайней мере в качестве временного варианта, до завершения основного строительства. Шифер же используют чаще всего и в качестве односкатной крыши, хотя, конечно, ничем не хуже и “металлический” вариант.
Иногда “скворечник” накрывают досками, которые затем обшивают рубероидом или другим подобным материалом. Это, разумеется, не самый лучший вариант, однако может быть реализован в качестве временного.
Возведение стен туалета из кирпича — вариант хороший, основательный и дорогостоящий. Такое решение чаще можно увидеть уже на стадии облагораживания территории, когда все жилые и хозяйственные сооружения уже построены. Туалет из того же кирпича, что и остальные постройки во дворе, будет гармонично смотреться в общем экстерьере.
Читать также Как сделать дорожки в саду своими руками. Практические советы, проверенные решения, фото
Недостатки отдельных стройматериалов
Еще немного о материалах, вернее, об их недостатках, так как преимущества каждого описаны и даче очевидны. Итак, дерево: следует учитывать, что наличие выгребной ямы внизу создает неблагоприятные условия для этого материала, поэтому крайне важно предварительно обработать все брусы и доски любой пропиткой, повышающей устойчивость древесины к влаге и плесени, а затем банально покрасить. Если же эстетическая составляющая для вас очень важна и хотелось бы сохранить натуральный вид дерева, покройте поверхность специальным прозрачным лаком для внешних работ.
Металл всем хорош, особенно профнастил, который выпускается с прекрасным защитным покрытием, предотвращающим его ржавение. Однако он имеет высокий показатель термопроводности, а потому летом будет нагреваться на солнце, превращая туалет в духовку, зимой же вам обеспечен толстый слой инея на внутренней стороне. Поэтому без термоизоляции в виде пенополистирола или минеральной ваты с внутренней обшивкой не обойтись.
Что касается кирпичной кладки, то тут дело не в материале, а в его весе: любая кирпичная постройка требует соответствующего фундамента. В данном случае подойдет фундамент ленточного типа. Прекрасный вариант основания для кирпичного туалета — железобетонная плита подходящего размера с отверстием над выгребной ямой.
Шалаш
Данный тип туалета полностью оправдывает свое название, так как представляет собой, по сути, двускатное сооружение наподобие проверенного временем индейского вигвама. Конструкция проста, прочна и устойчива, а, кроме того, выглядит вполне экзотично. Иной раз и не поймешь, что перед тобой туалет — в подобном строении можно, например, хранить садовый инвентарь.
На чертежах хорошо видны размеры, высчитанные для средних габаритов взрослого человека, и особенности конструкции, придающие ей максимальную жёсткость и прочность.
Материалы для шалаша могут быть использованы практически те же, что и для “скворечника” — дерево, металл, шифер. Из кирпича могут быть выложены разве что задняя и передняя (с отверстием под дверную лутку) стенки.
Справедливости ради надо сказать, что народ наш, особенно сельский, не слишком любит подобную экзотику, поэтому дворовой туалет типа «шалаш» пока не имеет широкого распространения.
Избушка (теремок)
Туалет по типу избушки — это своего рода симбиоз первых двух вариантов и имеет вид двускатной крыши с высоким коньком, установленной на невысокий короб с немного расширяющимися (как правило) к верху боковыми стенами. При должной отделке, имитирующей бревенчатый сруб, и фантазии можно превратить избушку в самый настоящий теремок (другое название данного вида конструкции).
При соизмеримом внутреннем пространстве шалаша и избушки последняя занимает меньше полезного пространства с наружной стороны, что обусловлено особенностями конструкции. Если сравнить фото туалетов обоих типов, сразу видно, почему.
В случае, если вы остановитесь на данном виде наружного строения дачного туалета, про металл и кирпич можно сразу же забыть, поскольку использование данных материалов нивелирует саму идею “теремка” — традиционного полусказочного домика, который в принципе не мог содержать в себе металлоконструкций.
Оптимальный вариант — каркас из деревянного бруса, обшитый деревянными же элементами, имитирующими традиционный сруб, или, в крайнем случае, вагонкой.
Домик
Столь банальное название, как ни странно, очень точно передает главную особенность данного вида конструкции надворного туалета, очень похожего на обычный жилой дом, правда, с несколько вытянутым вверх коробом, что и понятно, учитывая предназначение постройки.
Как вы сами можете заметить, домик — это тот же “скворечник”, который увенчивает двускатная крыша (вместо односкатной), что, между прочим, делает этот тип туалета более теплым и уютным.
Ограничений по материалам при постройке домика практически никаких: всё упирается во вкус и имеющиеся в наличии варианты. Конечно, обшитый деревом домик выглядит более уютно, нежели отделанный металлическим профилем, однако и здесь вкусовые предпочтения хозяина дачного участка или домовладения, а в некоторых случаях и вынужденная необходимость, всегда могут внести свои коррективы.
Альтернативные виды кабинок
Выше мы рассмотрели основные варианты конструкции надземной части дачного туалета, которые используются, наверное, в 99% всех построек. Разумеется, никто не проводил статистических исследований на сей счет, однако ситуация плюс-минус именно такова.
Читать также Беседка для дачи своими руками. Советы, идеи, примеры + 90 фото
Однако, существует немало построек, выполненных в комбинированном стиле, совмещающие в себе собственно туалет и смежную часть, в которой располагается летний душ, умывальник (помыть руки после отправления естественных надобностей) или обычный чулан для всевозможной утвари и хозинвентаря.
Что касается умывальника, то, как более простой вариант, можно просто приделать обычный рукомойник нажимного типа с наружной стороны туалета, снабдив его навесным козырьком либо оставив как есть.
Нечто среднее — подобие небольшой веранды перед входом в туалет: вот там и размещается умывальник.
Классификация по типу утилизации отходов
Конструкции надземной части дачного туалета, наиболее приемлемые для частного домовладения или дачного участка, мы рассмотрели, однако есть еще один критерий, упомянутый в начале статьи, по которому можно произвести классификацию туалетов — по типу утилизации отходов.
В зависимости от способа обустройства полезного объема для сбора продуктов жизнедеятельности человеческого организма, дачные туалеты могут быть:
- на основе выгребной ямы (самые распространённые);
- люфт-клозет (более современная конструкция);
- пудр-клозет (для нечастого пользования туалетом);
- биотуалет.
Туалет на основе выгребной ямы
Самый простой вариант, имеющий историю, равную, наверное, истории человечества. Уже со времен, когда люди научились строить города и облагораживать их, делая более удобными для жизни, простые формы “отхожего места” на основе ямы с деревянным перекрытием были известны человечеству. Удивительно, насколько живучей оказалась эта простая конструкция: до сих пор в сельской местности подобный способ имеет самое широкое распространение, и, как и в старину, заполненная с течением лет яма нередко попросту засыпается, а туалет переносится в другое место, где роют новую яму.
Основные санитарные нормы
Особенность выгребных ям заключается в их контакте с грунтом, поэтому были разработаны специальные санитарные нормы, позволяющие сделать пользование надворным туалетом безопасным для окружающих. Так, расположение выгребной ямы должно быть рассчитано таким образом, чтобы выдержать определенные расстояния до близлежащих объектов: до любых источников воды — не менее 25 м, до жилых построек — 12 м, хозяйственных — 4 м; до межи с соседним домовладением или дачным участком должно оставаться не менее 1 м, столько же и до ближайшего кустарника, а вот высаживать деревья можно не ближе 4 м к выгребной яме.
Важнейшее условие — высота грунтовых вод: если они ближе 2,5 м к поверхности грунта, то разрешается обустраивать только изолированные выгребные ямы в виде пластикового резервуара большой ёмкости. В противном случае ограничений нет и можно обустроить обычную яму — герметичную либо с фильтрующим дном.
Обустройство выгребной ямы
Рыть яму для дачного туалета лучше вручную лопатой: таким образом можно сформировать ровные края и придать яме аккуратную форму в виде квадрата или прямоугольника. Иногда делают круглую яму. Глубина — не более 3 метров.
Не нужно рыть слишком большую выгребную яму, так как потом труднее будет ее накрыть: достаточно ограничиться размерами 1,5х1,5 м, 1х1,5м или даже 1х1м. Прямоугольное сечение во многих случаях является предпочтительней, поскольку позволяет организовать с наружной стороны будки (обычно сзади) открывающийся люк для выкачивания нечистот ассенизаторной машиной (заранее продумайте возможность подъезда автомобиля с учетом длины шланга — стандарт 10-15 м, и глубины ямы).
Делать ли герметичную выгребную яму или же с фильтровальным дном — выбор за вами, однако второй вариант противоречит санитарным нормам. В то же время, затраты на вызов ассенизатора значительно сокращаются, так как часть жидких стоков (до 40% в месяц) попросту впитывается в почву. Важно, чтобы грунт был достаточно рыхлым, песчаным, тогда и яму можно делать не очень обльшую, особенно если пользоваться туалетом будут не очень интенсивно. И наоборот, плотный и глинистый грунт с малым коеффициентом впитывания сам по себе способен удерживать нечистоты, поэтому и яму чистить придется чаще.
Когда яма готова, нужно позаботиться об укреплении её стенок. Есть несколько наиболее ходовых способов:
- выложить стенки красным кирпичом (силикатный для данной цели не годится);
- забетонировать стенки;
- оформить яму при помощи железобетонных колец.
Читать также Как сделать крыльцо в частном доме. Полезные советы, примеры, фото
Для герметичной выгребной ямы сначала бетонируется ее дно, которое сперва утрамбовывается, затем насыпается 15-сантиметровая песчанная подушка, утрамбовывается и затем на равномерно разложенные куски красного кирпича укладывают арматуру из связанных проволокой металлических прутов. Все это заливают бетоном со щебнем толщиной до 15 см и дают затвердеть в течение нескольких (до 10) дней.
С бетонными кольцами может быть проще: достаточно приобрести нижнее кольцо “глухое”, с литым дном. Устанавливают его также на утрамбованную песчанную подушку, затем сверху, точно по торцу, укладывают нужное количество колец. Каждое торцевое соединение прокладывается нетолстым слоем бетонного раствора, чтобы достичь высокого уровня герметизации. Сами кольца, дабы избежать их сдвига, фиксируются металлическими скобами.
Бетонировать стенки считается самым трудоемким и требующим специальных навыков и опыта, что для наших целей, наверное, не подойдет. Поэтому, будем выкладывать их кирпичом. Здесь никаких сложностей не будет, к качеству кладки к вам никто претензий не предъявит. После все швы заделываются бетонным раствором или вовсе стены оштукатуриваются, если есть время и желание повозиться лишние полдня.
Важное замечание: если вы решили оставить дно негерметичным, для кирпичной кладки потребуется небольшой ленточный (по периметру ямы) фундамент. Дно же, помимо утрамбованной песчанной подушки, засыпается равным по толщине слоем крупного щебня или гальки.
Надежное перекрытие — важный момент безопасности, поэтому, если в вашем распоряжении нет готовой железобетонной плиты, для этой цели используйте толстые, предварительно обработанные, доски. Для большей прочности снизу поперёк досок можно уложить две металлические трубы либо бетонные балки.
Туалеты без выгребной ямы
Если высокие грунтовые воды либо сорасположение строений, насаждений и колодца на участке не позволяют организовать обычный, на основе выгребной ямы, дачный туалет, а в некоторых случаях — если планируется откровенно редкое его посещение, придется соорудить один из “изолированных” типов туалета: люфт-клозет, пудр-клозет или приобрести современный биотуалет.
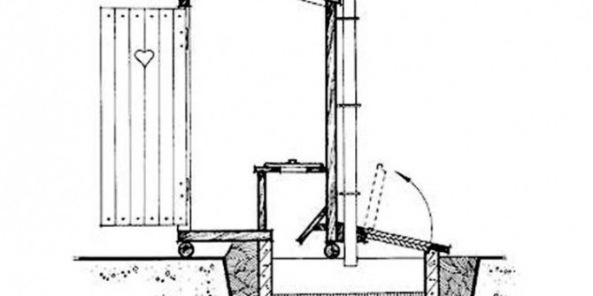
Люфт-клозет
Люфт-клозет представляет из себя кабинку с унитазом без водяной заглушки и расположенной на расстоянии герметичной емкости, которая сводит контакт продуктов жизнедеятельности человеческого организма с окружающей средой к нулю. Данная конструкция дает возможность даже обустроить туалет внутри дома, а емкость для сбора отходов расположить снаружи фундамента дома.
Важным элементом люфт-клозета является хорошая вентиляционная система. На представленных схемах мы видим различные реализации туалета по принципу люфт-клозета.
Пудр-клозет
Пудр-клозет — это туалет, который вообще не имеет стационарной емкости для сбора отходов в толще грунта, так что копать землю не придется.
Вся суть пудр-клозета заключается в емкости в виде специального ящика либо обычного ведра, устанавливаемой под стульчаком и в которую осуществляется сбор этих самых отходов, после каждого пользовния, пересыпаемых т.н. “пудрентом” — сыпучим составом из просеянной земли, сухой торфяной крошки, золы или подобного материала (обязательно натурального!), который обладает хорошими впитывающими характеристиками.
Заполненную до определённого уровня емкость придётся периодически выносить и вытряхивать на компостную кучу.
Надёжная вентиляция — необходимый элемент пудр-клозета, что само собой разумеется. Как и то, что, скажем, для большой семьи и активного пользования туалетом такой вариант малопригоден, да и обязанность по очистке приёмной ёмкости не самая приятная.
Биотуалет
Биотуалет представляет собой изолированный туалет промышленного производства, во многом схожий с пудр-клозетом.
Для скорейшего разложения фекалий здесь используются особые биологические культуры либо химические компоненты, которым насыщается торфяная смесь в приёмном баке.
Особенности установки и эксплуатации биотуалета содержатся в инструкции к каждой конкретной модели, разместить же всю установку можно в любом их представленных выше типов туалетных кабинок.
Подводя итог всему вышесказанному, хотелось бы заметить, что постройка дачного туалета, на самом деле — процесс не очень сложный, достаточно иметь некоторые навыки обращения с инструментами и материалами, желание сделать полезную и красивую вещь своими руками, чтобы затем гордиться результатами своего труда и творческих посылов, а также не бояться физического труда. Представленные в данной статье чертежи вы вполне можете использовать в качестве четкого руководства к действию либо источника вдохновения и идей, как и фотопримеры уже готовых туалетов.
Обустройство дачного туалета — первоочередная проблема при освоении приобретенной загородной территории.
Габаритные размеры дачного туалета могут быть разными.
Напрямую они зависят от нескольких основных факторов, включая расположение, конструктивные особенности и вариант внутреннего обустройства.
Выбор места расположения
Как правило, строительство дачного туалета планируется на улице, где самостоятельно возвести подобный тип конструкции несложно, но обязательно нужно учитывать целый ряд нюансов, позволяющих правильно выбрать место для установки такого сооружения.

- Неудачным является решение выделить под установку туалета место в центральной части придомовой территории, непосредственно на линии разграничения с соседским участком. В этом случае дискомфорт от загородного отдыха или постоянного проживания будет обеспечен не только владельцам дачи, но и соседям.
- Оптимальным вариантом для строительства станет угол дачного участка, с расстоянием не менее одного метра от задней и боковой разграничительной линии.
Выбор места для расположения дачного туалета обязательно должен базироваться не только на удобстве эксплуатации такой постройки, но и учитывать установленные санитарно-гигиенические требования, предъявляемые к подобным строениям. Санитарные нормы регулируются СанПиН № 42-128-4690-88.
В соответствии с действующими на данный момент правилами планировки и застройки территорий садово-дачных объединений, а также населенных пунктов, расстояние от выгребной туалетной ямы до домовладения и жилых сооружений должно составлять минимум 10-12 м, а до стационарного источника водозабора, включая питьевые колодцы — не менее 25 м.
Туалет на дачном участке
Исключение может быть сделано для районов и населенных пунктов с уже сложившейся застройкой, где отсутствует возможность соблюдать установленные нормы для обустройства уличных туалетов. В этом случае расстояние до постройки устанавливается комиссионным способом.
Оптимальное расположение кабинки составляет метр от забора, порядка 12-13 м от подвального помещения или погреба, примерно 4 м от плодовых насаждений и полтора метра от кустарников. Если выполняется герметичный септик с необходимостью периодического откачивания сточных вод, то обеспечивается беспрепятственный подъезд ассенизаторской машины.
При выборе места под установку очень важно правильно определиться с розой ветров, что не позволит постройке докучать хозяевам домовладения канализационными запахами вне зависимости от времени года и погодных условий.
Размеры дачного туалета
Чтобы правильно определиться с размерами туалета на даче, необходимо выбрать тип конструкции такого строения, который может быть представлен:
- самым простым и распространенным вариантом, хорошо известным как «деревенский» туалет с традиционной выгребной ямой;
- туалетным домиком типа «люфт-клозет», предусматривающим обустройство резервуара выгребной ямы с полноценной гидроизоляцией, которая предотвращает попадание сточных вод и продуктов жизнедеятельности в почву или грунтовые воды;
- дачный туалет типа «пудр-клозет» или биотуалет, устанавливаемый внутри возведенного самостоятельно деревянного домика.
Принципиальная схема люфт клозета
Допустимыми размерами «домика» по полу с учетом стульчака принято считать полтора метра вглубь и примерно 1,2 м или более в ширину. Возведение дачного туалета типа «шалаш» или «избушка» предполагает полтора метра в глубину и порядка 90-100 см в ширину. В соответствии с правилами, от головы пользователя в стоячем положении до стены должно оставаться не менее 35-40 см, что необходимо учитывать в процессе расчета угла наклона шалашных стенок.
Как показывает практика, оптимальная высота от пола до потолка составляет 2,0-2,1 м, и примерно 1,90-1,95 над стульчаком. Удобными являются показатели высоты бортика унитазного сидения от пола на уровне полуметра.
По сравнению с моделями «скворечник» и «шалаш», а также «домик», конструкции уличного дачного туалета под названием «избушка» расшатывание не грозит, что обусловлено его конструктивными особенностями.
Схемы и чертежи
Создание схематичного чертежа постройки — один из самых важных этапов, позволяющих не только правильно возвести конструкцию, но и максимально грамотно рассчитать количество всего строительного материала, необходимого для изготовления дачного туалета.
Чертеж дачного туалета Теремок
Схема уличного туалета прямоугольной формы
Основная задача создаваемого чертежа-проекта дачного уличного туалета заключается в детализации конструкции с указыванием размеров, формы и типа возводимой постройки.
Можно разработать схематичный чертеж постройки самостоятельно или взять за основу уже готовую детализацию конструкции уличного туалета из интернета.

Варианты дачных туалетов и сравнение разных типов моделей вы найдете в этом обзоре.
Все о плюсах и минусах электрических биотуалетов вы найдете в этой публикации.
Устройство выгребной ямы
На песчаных или супесчаных типах почвы, при залегании грунтовых вод на уровне менее 2,5 м, целесообразным является устройство выгребной ямы без дна согласно следующей технологии:
- копка котлована с разбросом верхнего слоя почвы по участку. Примерно полтора кубометра грунта следует оставить для обустройства теплоизоляции над перекрытием;
- устройство стен с одновременным прокладыванием труб. Стенки выполняются посредством кирпичной кладки или с применением бетонных колец, а трубная система располагается под наклоном, что предотвращает застойные процессы;
- после монтажа элементов, представленных трубами, кольцами и крышками, выполняется монтаж люков.
Уустройство выгребной ямы без дна и с дном
Принципиальное отличие имеет герметичная выгребная яма, в которую поступление сточных вод обусловливается наличием специального трубопровода. В этом случае сточные воды регулярно выкачиваются ассенизаторской машиной. Накопительный резервуар может быть представлен герметичным бетонным колодцем или пластиковой заводской емкостью в виде объёмного еврокуба.
Обязательным условием беспроблемной эксплуатации такой ямы является установка вентиляционного выхода диаметром не менее 10 см, возвышающегося над поверхностью примерно на 70-80 см.
Особого внимания требует прокладка канализационного трубопровода, который должен быть доступен для ремонта и обслуживания в процессе эксплуатации.
Возведение туалетного домика: пошагово
Самым простым, распространённым и доступным по цене вариантом является традиционная деревянная уличная уборная. Такая конструкция может быть при необходимости достаточно легко перенесена на новое место.
Для обшивки возведенного каркаса используются доски, вагонка, ДСП-листы или листовая фанера. Наиболее распространенным вариантом станет клозет, сделанный из дощатых щитов.
Уличный туалетный домик
Особой популярностью у дачников пользуется простая деревянная модель «скворечник» с односкатной крышей, имеющая высоту задней стенки 200 см, передней — 230 см и ширину не менее 100 см. Стандартный размер основания составляет 100х100 см.
При установке горизонтальные и вертикальные поверхности в обязательном порядке контролируются посредством строительного уровня.

- установка в качестве фундаментного основания бетонного бордюрного перекрытия с расстоянием примерно 18-20 см от краев выгребной ямы;
- укладка на бетонный бордюр гидроизоляции в виде трёх или четырёх слоев рубероида;
- возведение деревянного каркасного основания;
- обшивка каркаса.

О том, как построить и обустроить бытовку дачную двухкомнатную с туалетом и душем, вы можете почитать в этой статье.
На заключительном этапе вырезается туалетное отверстие до 28-30 см в поперечнике, а также устанавливается дверь. В качестве кровельного материала может использоваться рубероид, шифер или профильный стальной лист.
При самостоятельном обустройстве деревянного дачного туалета не следует пренебрегать установкой простейшей вентиляции, целью которой является отвод воздуха из выгребной ямы в атмосферу. Деревянная конструкция может быть окрашена краской или покрыта лаком, что сделает её долговечной и привлекательной внешне.
Видео на тему
Поделиться:Используемые источники:
- https://wcloset.ru/119-chertezhi-dachnogo-tualeta-kak-postroit-dachnyy-tualet-svoimi-rukami.html
- https://dachaklub.ru/dachnyj-tualet-foto-video-vidy-klozetov-chertezhi-i-razmery.html
- https://dominafiesta.com/tualet-svoimi-rukami-poshagovaya-instruktsiya-foto-video-chertezh-rekomendatsii-eksperta-kak-postroit-horoshij-tualet-dlya-dachi/
- https://masterlandshafta.ru/proekty-landshafta/planirovanie-uchastka/razmery-dachnogo-tualeta.html






































































































