При эксплуатации любой системы в трубопроводах из-за сбоя в работе может возникнуть высокое давление, которое способно привести к разрушению оборудования. Для защиты агрегатов в систему устанавливают предохранительный клапан, который, если в трубопроводах повысится давление выше номинального, производит сброс избытка рабочей среды, и в системе восстанавливается номинальное давление.
Принцип действия предохранительных клапанов
Защитное устройство от высокого давления устанавливается в трубопроводах и сосудах, находящихся под давлением. В зависимости от назначения конструкция предохранительных элементов может быть разным, но схема и принцип работы у всех одинакова.
При нормальной работе оборудования седло под действием пружинного механизма закрыто и не оказывает никакого воздействия на систему. Давление настройки клапана равно рабочему давлению в системе. Когда напор в трубопроводах превысит усилие пружинного элемента, закрывающего отверстие, то седло откроется и произойдет выброс проводимой среды. В результате давление упадет и седло опять закроется.

Рабочая среда может быть разной, вода, пар, газообразные фракции, смазочные и гидравлические масла и нефтепродукты. Поэтому и сброс излишек напора может производится в атмосферу, например, пар, воздух, вода, или обратно в сливную магистраль для агрессивных материалов.
Предохранительный клапан начинает приоткрываться для сброса давления при напоре на 3% ниже номинального. Сброс рабочей среды вначале небольшой, но если этого недостаточно и напор растет, то седло откроет доступ к сливу при показателях 110-115% от рабочего.
После того как напор упадет, седло перекроет доступ, и система продолжит работу в нормальном режиме.
Применение предохранительных устройств
Для обеспечения безопасной работы предохранительный фитинг является обязательным элементом любой системы, работающей под давлением.
В зависимости от назначения они могут устанавливаться в следующих местах:
- Горячее водоснабжение и отопление. Предохранительный клапан для системы отопления устанавливается на трубопроводах после подающего насоса. Так как горячая вода агрессивна, сброс должен направляться в безопасное место, обычно в канализацию. При больших расходах количество агрегатов может доходить до 2 и больше.
- Фитинг сантехнический для водопровода холодной воды устанавливается в трубопроводах водоснабжения питьевой водой. Сброс производится непосредственно на землю.
Фитинг сантехнический для водопровода - Гидросистема. В качестве рабочей жидкости используются гидравлические масла. Гидросистема служит для привода рабочих механизмов: гидромоторов, гидроцилиндров. Предохранительный фитинг устанавливается на трубах, или может быть в составе насоса или гидрораспределителя. Сброс масла производится в сливную магистраль.
- Трубопроводы газоснабжения. Повышение напора в трубах может привести к аварийной ситуации – это отрыв пламени от горелок, накапливание излишка газа и взрыв в помещении. Поэтому арматура устанавливается сразу после регулятора напора, а сброс производится в атмосферу.
- Система воздушная, компрессоры. Защитное устройство устанавливается в корпусе компрессора, сброс происходит в атмосферу.

Виды защитных механизмов
В промышленности применяются различные конструкции защитных устройств труб, в зависимости от их места установки и проводимой среды. Это могут быть пружинные, рычажные, мембранные, двухпозиционные и другие виды применяемых предохранительных клапанов.
Рассмотрим подробнее их устройство и принцип работы.
Клапан предохранительный пружинный
Самый широко используемый предохранительный клапан, особенно для систем отопления. Основные его преимущества, простота конструкции и возможность легко отрегулировать на рабочее давление в системе. Различают следующие разновидности защитных пружинных механизмов:
- прямого действия – устройство срабатывает при непосредственном воздействии рабочей среды;
- непрямого действия – сброс повышенного напора производится внешним управлением, например, электрическим сигналом;
- двухпозиционные агрегаты – открытие фитинга происходит сразу резко на полный ход, после сброса напора фитинг резко закрывается, что может вызвать автоколебания седла и вибрацию механизма.
Защитный механизм рычажного типа
Механизм данного фитинга состоит из рычага, соединенного с золотником, который закрывает отверстие выпуска. На рычаг подвешивается груз, и, в зависимости от веса груза и места крепления на рычаге, регулируется настройка механизма.
Груз фиксируется на рычаге от случайного смещения и изменения настройки. Недостатком данной конструкции является ее громоздкость, поэтому применение таких механизмов производится в системах с большим диаметром труб, больше 50 мм.
Клапан предохранительный мембранный
Основным элементом такой конструкции является мембрана. Принцип работы состоит в том, что при возникновении аварийного напора в трубах мембрана разрывается и производится сброс рабочей среды. Мембранные устройства просты в изготовлении, герметичны и быстро срабатывают.
Важно! У них есть существенный недостаток, после каждого срабатывания мембрану надо менять на новую. Поэтому всегда рядом с таким устройством ставят и обычный фитинг.
В зависимости от конструкции, такие устройства могут быть с разрывной мембраной и с хлопающей мембраной:
- Механизмы с разрывной мембраной применяют в системах с жидкими и газообразными рабочими средами. Форма мембраны плоская или куполообразная, при резком изменении давления выше рабочего устройство срабатывает, и мембрана разрушается.
- Механизмы с хлопающей мембраной используются чаще всего в системах с газообразной рабочей средой. Мембрана изготавливается из каучукообразной ткани и предохраняет трубы как от повышения, так и опасного снижения давления. Для этого сверху и снизу мембраны расположены ножи. При изменении давления мембрана выгибается, и когда, при резком перепаде в системе, касается ножей, то происходит разрез оболочки. При этом в зависимости от величины напора происходит или сброс, или пополнение от дополнительной емкости.
Установка и монтаж
Для обеспечения безопасной эксплуатации газовых и водяных трубопроводов, при установке защитных агрегатов, рекомендуется соблюдать следующие требования:
- На трубах, подходящих к защитному механизму, и трубопроводах сброса напора нельзя устанавливать запорную арматуру и фильтра.
- Ось пружинного фитинга должна устанавливаться вертикально. К агрегату должен быть обеспечен свободный доступ для замены и регулировки.
- Рычаг защитного механизма рычажного типа при установке должен располагаться горизонтально.
- Перед фитингом для контроля напора необходимо установить манометр.
Установка манометра на трубопровод - В зависимости от рабочей среды отводящая труба может быть направлена: в атмосферу для пара и газообразных неагрессивных сред. Для горячей воды слив должен быть направлен в специальную емкость, или обратно в систему. Если в трубах агрессивная среда, то сброс должен сливаться только в закрытый резервуар.
- Длина трубы от оборудования до установки защитного агрегата должна быть минимальной. На этом участке не допускается подключение ответвлений для отбора рабочей среды.
- Предохранительный клапан для системы отопления может устанавливаться в нескольких местах на трубопроводе, при этом расход рабочей среды через трубопровод должен быть на 1,25 раз больше, чем суммарный расход устанавливаемых устройств.
Установка оборудования в котельной - Перед сдачей системы в эксплуатацию обязательно проверяют правильность настройки предохранительного клапана, а также его способность возврата в начальное положение и обеспечения герметичности.
Эксплуатация
Долговечность работы защитных механизмов зависит от соблюдения всех условий технической эксплуатации. При работе защитного агрегата из-за износа основных частей могут возникать следующие дефекты:
- Негерметичность седла. Дефект может возникнуть в результате попадания металлической стружки и наличие рисок на седле. Дефект устраняется притиркой седла или его заменой на аналогичный фитинг.
- Заниженное давление открытия устройства вследствие потери пружиной клапана своих упругих свойств или разрегулировка настройки. Для устранения отказа надо заменить пружину или сам фитинг, настроить давление, проверить в работе и поставить пломбу.
- Если необходимо произвести замену агрегата для ремонта, то на его место нельзя временно ставить заглушку или вентиль. Необходимо, для безопасности объекта, предварительно произвести подбор клапана с точно такими же характеристиками, и только его устанавливать вместо снятого.
- Если возникает пульсация при работе, быстрое открытие и закрытие затвора устройства, то такой дефект может вызывать нежелательную вибрацию трубопроводов, что может привести к их деформированию. Причиной может быть несоответствие размеров сечений основного трубопровода и трубопровода, подключенного к агрегату. Для устранения дефекта надо при монтаже устанавливать трубы одинакового сечения.
Главная > Оснастка > Запчасти > Предохранительный клапан<index>
Любая система, работающая под давлением, нуждается в защите от перегрузок по давлению, возникающих в нештатных или аварийных ситуациях. Для этого применяются предохранительные клапаны. Они различаются по конструкции и характеристикам, для каждой установки — газовой или жидкостной — можно подобрать подходящую предохранительную арматуру.
Назначение
Основное назначение предохранительного клапана – защита системы от повышенного давления, которое может привести к ее повреждению или даже разрушению. Клапан сбрасывает излишки рабочей среды при превышении предельного значения ее напора. Сброс происходит в дренажную систему или в атмосферу. После того, как давление в системе упадет до нормального, предохранительный клапан закрывается и сброс прекращается.
Принцип действия клапанов
Принцип работы любого предохранительного клапана чрезвычайно прост. Запирающий элемент прижимается к седлу пружиной. По мере роста давления оно начинает превозмогать силу сжатия пружины, сжимая ее и отодвигая запорный элемент от седла. В открытый просвет устремляются излишки жидкости или газа. По мере выхода напор снижается, пружина отжимает запорный элемент обратно к седлу.
Устройство закрывается и готово к следующему рабочему циклу. Сила сжатия пружины, а, следовательно, порог срабатывания регулируется винтом.
Классификация предохранительных клапанов
Специалисты классифицируют устройства по различным параметрам.
По принципу действия:
- Прямого. Это классический механический предохранительный клапан.
- Непрямого. Используется датчик давления, автоматика управления, дистанционно управляемый вентиль. Датчик с вентилем могут быть разнесены по разным местам конструкции.
По способу открытия затвора:
- пропорционального (для малосжимаемых рабочих сред);
- двухступенчатые (для газов).
По способу нагружения золотника:
- пружинные;
- рычажно-грузовые;
- магнито-пружинные.
Существуют и другие типы аварийных предохранительных клапанов, применяемых в специальных промышленных установках.
Различия в конструкциях
Устройство различных предохранительных клапанов может различаться. Так, большая часть арматуры выпускается с одним седлом. Можно встретить и конструкции, в которых два седла (и два штока с пружинами) установлены рядом.
По отношению высоты подъема запорного элемента к его диаметру различают:
- малого подъема: до 1/20;
- среднего подъема: до 1/4;
- полного подъема: свыше 1/4.
Чем выше степень подъема, тем быстрее срабатывает устройство. Малоподъемные модели применяются для жидкостей, там, где не требуется сбрасывать большие объемы для снижения давления до нормального. В них высота подъема пропорциональна напору среды. Полноподъемные называют также двухпозиционными. Они имеют два положения: «Открыто» и «Закрыто» и предназначены для:
- жидкостных систем высокого давления;
- газов.
Такая конструкция позволяет быстро сбросить значительный объем газа или жидкости и применяется в особо ответственных установках и технологических комплексах.
Самые серьезные конструктивные различия наблюдаются в способах приложения нагружающей силы к запорному органу.
Пружинные клапаны
Наиболее распространены в бытовых системах- водонагревательных, водопроводных, отопительных. Золотник прижимается к седлу силой сжатой пружины. Изменяя степень предварительного сжатия пружины регулировочным винтом, можно настраивать ее на разные предельные значения. Многие модели снабжаются рычагом принудительного ручного открытия затвора для того, чтобы время от времени проверять работоспособность. Для устройств, работающих в опасных и вредных для здоровья средах, ручная контрольная продувка не предусматривается. Пружины, седла и камера устройств, работающих в агрессивных жидкостях и газах, покрывается специальными антикоррозийными покрытиями.
Шток, проходящий через корпус, уплотняется двойным сальником из особо стойких материалов (специальные сорта резины, фторопласт), исключающим в нормальных условиях проникновение агрессивных веществ в помещение.
Рычажно-грузовые клапаны
Такие конструкции для противодействия силе напора используют силу земного притяжения. Они могут монтироваться только в строго определенном производителем положении относительно горизонта и не допущены к применению на транспортных средствах и других подвижных объектах. Вес груза передается через рычаг штоку золотника, уравновешивая его до тех пор, пока давление в трубопроводе ниже порогового.
При больших значениях напора заметно увеличиваются габариты рычагов и грузов. Кроме того, они могут входить в резонанс и создавать высокие уровни вибрации.
Чтобы избавиться от этих эффектов, и применяют двухседельные клапаны, каждый из которых невелик по габаритам и весу. Регулировка таких устройств проводится добавлением или удалением части груза, размещенного на рычаге. Они отличаются стабильностью параметров работы и отсутствием эффекта старения пружин, снижающих их упругость.
Магнито-пружинные клапаны
Современные конструкции относятся к изделиям непрямого действия. Запорный элемент приводится в действие соленоидом. В нормальном положении электромагнит прижимает его к седлу, а по достижении предельного напора автоматика управления отключает напряжение на катушке индуктивности. Давление среды отжимает золотник и затвор открывается.
В другой конструкции прижатие осуществляется мощной пружиной, а по достижении порогового значения напора управляющая команда включает соленоид, и он поднимает клапан.
Существует исполнение, в котором соленоид и прижимает золотник, и отжимает его под действием противоположно приложенного напряжения. В случае отключения питания устройство продолжает работать как обычное пружинное.
Главное преимущество магнитных устройств — для задания порогового значения нет необходимости в физическом доступе к арматуре. Порог можно изменить в настройках программы управления в зависимости от текущей ситуации или особенности данной стадии технологического процесса.
Такие конструкции стоят существенно дороже своих механических аналогов, но многократно окупают себя в сложных промышленных установках с большим чистом параметров и влияющих друг на друга элементов.
Технические требования к предохранительным клапанам
Основное требование, предъявляемое к аварийной арматуре- это надежность и четкость срабатывания. Достигается это за счет:
- Быстрое открытие при достижении порога срабатывания.
- Достаточная пропускная способность при открытии.
- Четкое закрытие при снижении напора до допустимого уровня.
- Гарантия герметичности и отсутствие утечек при нормальном напоре до и после срабатывания.
- Безотказность в течении паспортного срока эксплуатации и проектного числа срабатываний. Стабильность параметров упругих элементов и качества поверхностей золотника и седла.
Вся предохранительная арматура обязательно должна периодически испытываться на работоспособность, целостность и качество уплотнений. Для этого ее демонтируют и направляют в сертифицированную поверочную лабораторию или испытательный центр. Для предохранителей, работающих в сложных установках непрерывного цикла, допускается проверка на месте. Ее проводят методом испытания в действии.
Правила и стандарты
Применение предохранительной арматуры регулируется национальными и отраслевыми стандартами, правилами эксплуатации и техническими указаниями.
Для сосудов, работающих под давление, применяют следующие регламентирующие документы:
- (ПБ 03-576-03). Правила безопасности для сосудов и установок давления.
- «Boiler & Pressure Vessel Code» Американский стандарт.
- ГОСТ 24570-81 Национальный стандарт по предохранительным клапанам.
Скачать ГОСТ 24570-81
Системы, защищаемые аварийной арматурой, в случае их нештатной работы или аварии, представляют собой значительную угрозу производственной и общественной безопасности. Поэтому их проектирование, комплектация, монтаж, эксплуатация курируются уполномоченными органами, следящими за соблюдением требований правил и стандартов на всех этапах жизненного цикла оборудования. В РФ это поручено Ростехнадзору.
Выбор аварийной арматуры
При проектировании системы водоснабжения, отопления или технологической установки необходимо четко определить предельные значения давления, допустимые для ее компонентов или участков сети. При этом учитываются такие параметры, как:
- производительность бойлера или главного насоса;
- объем и рабочая температура рабочей среды;
- особенности ее циркуляции.
Исходя их этого, определяют тип, сечение, пропускную способность, пороговое значение срабатывания, скорость срабатывания и время возвращения в исходное состояние, а также количество и места монтажа предохранительной арматуры.
В бытовых отопительных системах чаще всего применяются пружинные клапаны. Для жидкостных сред вполне достаточно использовать устройства низкого или среднего подъема. Пропускная способность должна обеспечивать быстрый сброс напора до допустимых величин.
Конструкция корпуса определяется местом сброса излишнего количества рабочей среды. Если она будет сбрасывать непосредственно в окружающую среду- достаточно клапана открытого типа. Если сброс должен происходить в дренаж- потребуется корпус с выходным патрубком соответствующего типа присоединения. Чаще всего используют резьбовой или ниппельное.
Ни в коем случае нельзя приобретать клапан с завышенным относительно расчетного порогом срабатывания. Такое устройство не откроется в нужный момент. Это может привести к повреждению оборудования или даже к полной аварии системы.
Если вы нашли ошибку, пожалуйста, выделите фрагмент текста и нажмите Ctrl+Enter.
</index>
Обязательным элементом каждой гидросистемы, функционирующей под высоким давлением, считается предохранительный клапан. Устройство специально предназначено для защиты систем от чрезмерного превышения давления, ограничивая его предельную границу. При приближении к опасной отметке сбросной клапан срабатывает, осуществляя сброс рабочей среды до момента нормализации внутрисистемного давления.
Предохранительный клапан с переливным золотником
Более стабильно давление держат двухкаскадные клапаны (рис. 63), в которых малый предохранительный клапан точно отрегулирован и управляет работой переливного клапана. Переливной клапан находится под гидростатическим давлением сверху и снизу и под действием пружины, стремящейся его закрыть. Верхняя и нижняя полости соединены дросселем. При превышении давления сверх допустимого клапан, регулируемый пружиной, открывается, давление в верхней полости за счет потери в дросселе уменьшается и переливной клапан поднимается вверх, обеспечивая сброс жидкости.
Рис. 63. Предохранительный клапан с переливным золотником 1 – пружина предохранительная клапана;
1 – предохранительный клапан; 3 – дроссель; 4 – пружина переливного золотника; 5 – переливной золотник
Принцип действия
На поясняющем рисунке — чертёж типичного пружинного клапана прямого действия. На его примере рассмотрим типичную конструкцию. Обязательными компонентами конструкции предохранительного клапана прямого действия являются запорный орган и задатчик, обеспечивающий силовое воздействие на чувствительный элемент, связанный с запорным органом клапана. Запорный орган состоит из затвора и седла. Если рассматривать поясняющий рисунок, то в этом простейшем случае затвором является золотник, а задатчиком выступает пружина. С помощью задатчика клапан настраивается таким образом, чтобы усилие на золотнике обеспечивало его прижатие к седлу запорного органа и препятствовало пропуску рабочей среды, в данном случае настройку производят специальным винтом.
Когда предохранительный клапан закрыт, на его чувствительный элемент воздействует сила от рабочего давления в защищаемой системе, стремящаяся открыть клапан и сила от задатчика, препятствующая открытию. С возникновением в системе возмущений, вызывающих повышение давления свыше рабочего, уменьшается величина силы прижатия золотника к седлу. В тот момент, когда эта сила станет равной нулю, наступает равновесие активных сил от воздействия давления в системе и задатчика на чувствительный элемент клапана. Запорный орган начинает открываться, если давление в системе не перестанет возрастать, происходит сброс рабочей среды через клапан.
С понижением давления в защищаемой системе, вызываемом сбросом среды, исчезают возмущающие воздействия. Запорный орган клапана под действием усилия от задатчика закрывается.
Давление закрытия в ряде случаев оказывается на 10-15 % ниже рабочего давления, это связано с тем, что для создания герметичности запорного органа после срабатывания требуется усилие, значительно большее, чем, то, которого было достаточно для поддержания герметичности клапана перед открытием. Это объясняется необходимостью преодолеть при посадке силу сцепления молекул среды, проходящей через щель между уплотнительными поверхностями золотника и седла, вытеснить эту среду. Также понижению давления способствует запаздывание закрытия запорного органа, связанное с воздействием на него динамических усилий от проходящего потока среды, и наличие сил трения, требующих дополнительного усилия для его полного закрытия
Это интересно: Передняя бабка токарного станка по дереву и металлу — устройство, назначение
Устройство предохранительных клапанов
Предохранительный клапан – это специальная трубопроводная арматура, функционирующая от рабочей среды. Существуют различные типы предохранительных устройств, но сбросные клапаны пользуются наибольшей популярностью благодаря эффективности работы при относительной несложности конструкции.
Конструкция предохранительного клапана зависит от его типа, но чаще применяются клапаны с пружинным механизмом прямого действия, обязательными компонентами которых являются задатчик с запорным органом. Задатчик отвечает за силовое воздействие на чувствительный элемент, непосредственно связанный с запорным органом, состоящим из запора и седла. В роли затвора обычно выступает золотник, а в качестве задатчика используется стальная пружина.
Грузовые аккумуляторы
Грузовые аккумуляторы отличаются простотой конструкции и надежностью в работе. К недостаткам их относится малая емкость жидкости и инерционность ввиду большой массы груза.
Рис. 65. Грузовой аккумулятор
1 – переливное отверстие; 2 – крестовина; 3 – груз; 4 – шток; 5 – цилиндр; 6 – основание
Рис. 66. Пневмогидравлический аккумулятор
1 – управляющая колонка; 2 – пневмогидравлический баллон; 3 – пневматические баллоны
Грузовой аккумулятор (рис. 65) состоит из основания с цилиндром штока и подвешенных через крестовину грузов.
Жидкость подводится в нижнюю часть аккумулятора, поднимая шток с грузом. В зависимости от площади штока и веса груза определяется давление аккумуляторов. Для предотвращения выбрасывания жидкости аккумулятора в верхней части цилиндра устанавливается переливное отверстие.
Обратный клапан
При установке нескольких насосов каждый из них подключается к магистрали через обратный клапан. При остановке насоса или переводе его на холостой ход прекращается переток жидкости из магистрали к насосу. Обратный клапан (рис. 64) состоит из корпуса и клапана, прижимаемого пружиной на конусное седло. При воздействии давления снизу клапан открывается и жидкость перетекает в прямом направлении. При остановке насоса переток жидкости прекращается и противодавлением клапан опускается вниз, прижимаясь к седлу и предотвращая движение жидкости в обратном направлении.
Рис. 64. Обратный клапан
1 – клапан; 2 – пружина; 3 – конусное седло; 4 – корпус
Устройство гидроаккумулятора и их разновидности
На гидравлических станциях средней и большой мощности для стабилизации давления при переменном расходе жидкости применяют аккумуляторы. В момент большого расхода аккумулятор отдаст масло в магистраль, в момент малого расхода заряжается. Применяют аккумуляторы многих типов, но наиболее широко распространены грузовые и пневматические.
Классификация предохранительных клапанов
По принципу действия
- клапаны прямого действия — обычно именно эти устройства имеют в виду, когда используют словосочетание предохранительный клапан, они открываются непосредственно под действием давления рабочей среды;
- клапаны непрямого действия — клапаны с управлением путём использования постороннего источника давления или электроэнергии, общепринятое название таких устройств импульсные предохранительные устройства;
По характеру подъёма замыкающего органа
- клапаны пропорционального действия (используются на несжимаемых средах)
- клапаны двухпозиционного действия
По высоте подъёма замыкающего органа
- малоподъёмные
- среднеподъёмные
- полноподъёмные
По виду нагрузки на золотник
- грузовые или рычажно-грузовые
- пружинные
- рычажно-пружинные
- магнито-пружинные
Виды защитных механизмов
В промышленности применяются различные конструкции защитных устройств труб, в зависимости от их места установки и проводимой среды. Это могут быть пружинные, рычажные, мембранные, двухпозиционные и другие виды применяемых предохранительных клапанов.
Рассмотрим подробнее их устройство и принцип работы.
Клапан предохранительный пружинный
Самый широко используемый предохранительный клапан, особенно для систем отопления. Основные его преимущества, простота конструкции и возможность легко отрегулировать на рабочее давление в системе. Различают следующие разновидности защитных пружинных механизмов:
- прямого действия – устройство срабатывает при непосредственном воздействии рабочей среды;
- непрямого действия – сброс повышенного напора производится внешним управлением, например, электрическим сигналом;
- двухпозиционные агрегаты – открытие фитинга происходит сразу резко на полный ход, после сброса напора фитинг резко закрывается, что может вызвать автоколебания седла и вибрацию механизма.

Защитный механизм рычажного типа
Механизм данного фитинга состоит из рычага, соединенного с золотником, который закрывает отверстие выпуска. На рычаг подвешивается груз, и, в зависимости от веса груза и места крепления на рычаге, регулируется настройка механизма.
Груз фиксируется на рычаге от случайного смещения и изменения настройки. Недостатком данной конструкции является ее громоздкость, поэтому применение таких механизмов производится в системах с большим диаметром труб, больше 50 мм.

Клапан предохранительный мембранный
Основным элементом такой конструкции является мембрана. Принцип работы состоит в том, что при возникновении аварийного напора в трубах мембрана разрывается и производится сброс рабочей среды. Мембранные устройства просты в изготовлении, герметичны и быстро срабатывают.
Важно! У них есть существенный недостаток, после каждого срабатывания мембрану надо менять на новую. Поэтому всегда рядом с таким устройством ставят и обычный фитинг.
В зависимости от конструкции, такие устройства могут быть с разрывной мембраной и с хлопающей мембраной:
- Механизмы с разрывной мембраной применяют в системах с жидкими и газообразными рабочими средами. Форма мембраны плоская или куполообразная, при резком изменении давления выше рабочего устройство срабатывает, и мембрана разрушается.
- Механизмы с хлопающей мембраной используются чаще всего в системах с газообразной рабочей средой. Мембрана изготавливается из каучукообразной ткани и предохраняет трубы как от повышения, так и опасного снижения давления. Для этого сверху и снизу мембраны расположены ножи. При изменении давления мембрана выгибается, и когда, при резком перепаде в системе, касается ножей, то происходит разрез оболочки. При этом в зависимости от величины напора происходит или сброс, или пополнение от дополнительной емкости.

Установка и монтаж
Для обеспечения безопасной эксплуатации газовых и водяных трубопроводов, при установке защитных агрегатов, рекомендуется соблюдать следующие требования:
- На трубах, подходящих к защитному механизму, и трубопроводах сброса напора нельзя устанавливать запорную арматуру и фильтра.
- Ось пружинного фитинга должна устанавливаться вертикально. К агрегату должен быть обеспечен свободный доступ для замены и регулировки.
- Рычаг защитного механизма рычажного типа при установке должен располагаться горизонтально.
- Перед фитингом для контроля напора необходимо установить манометр.
Установка манометра на трубопровод
- В зависимости от рабочей среды отводящая труба может быть направлена: в атмосферу для пара и газообразных неагрессивных сред. Для горячей воды слив должен быть направлен в специальную емкость, или обратно в систему. Если в трубах агрессивная среда, то сброс должен сливаться только в закрытый резервуар.
- Длина трубы от оборудования до установки защитного агрегата должна быть минимальной. На этом участке не допускается подключение ответвлений для отбора рабочей среды.
- Предохранительный клапан для системы отопления может устанавливаться в нескольких местах на трубопроводе, при этом расход рабочей среды через трубопровод должен быть на 1,25 раз больше, чем суммарный расход устанавливаемых устройств.
Установка оборудования в котельной
- Перед сдачей системы в эксплуатацию обязательно проверяют правильность настройки предохранительного клапана, а также его способность возврата в начальное положение и обеспечения герметичности.
Пневмогидравлический аккумулятор
Пневмогидравлический аккумулятор (рис. 66) состоит из пневматических баллонов, пневмогидравлического баллона, системы управления. Ввиду взрывоопасности смеси паров масла с воздухом пневматические баллоны заряжаются инертным газом – азотом, аргоном и т. д. Жидкость через запорный клапан закачивается в нижнюю часть гидравлического баллона, сжимая находящийся в аккумуляторе газ.
Это интересно: Пружинная шайба (гроверная) — разновидности, аналоги, изготовление
Эксплуатация
Долговечность работы защитных механизмов зависит от соблюдения всех условий технической эксплуатации. При работе защитного агрегата из-за износа основных частей могут возникать следующие дефекты:
- Негерметичность седла. Дефект может возникнуть в результате попадания металлической стружки и наличие рисок на седле. Дефект устраняется притиркой седла или его заменой на аналогичный фитинг.
- Заниженное давление открытия устройства вследствие потери пружиной клапана своих упругих свойств или разрегулировка настройки. Для устранения отказа надо заменить пружину или сам фитинг, настроить давление, проверить в работе и поставить пломбу.
- Если необходимо произвести замену агрегата для ремонта, то на его место нельзя временно ставить заглушку или вентиль. Необходимо, для безопасности объекта, предварительно произвести подбор клапана с точно такими же характеристиками, и только его устанавливать вместо снятого.
- Если возникает пульсация при работе, быстрое открытие и закрытие затвора устройства, то такой дефект может вызывать нежелательную вибрацию трубопроводов, что может привести к их деформированию. Причиной может быть несоответствие размеров сечений основного трубопровода и трубопровода, подключенного к агрегату. Для устранения дефекта надо при монтаже устанавливать трубы одинакового сечения.
Преимущества применения предохранительных клапанов
- Невысокая цена устройства при длительном сроке эксплуатации.
- Простота конструкции и легкость в эксплуатации.
- Несложность монтажа и выбора рабочих настроек.
- Разнообразие типов и габаритных размеров позволяет подобрать наиболее подходящий сбросной клапан в зависимости от технических характеристик системы.
- Возможность использования устройств в агрессивной среде.
- В зависимости от типа устройства бывают клапаны, которые устанавливаются как в горизонтальном, так и в вертикальном положении.
Предохранительный клапан – относительно недорогой и надежный элемент, который является обязательной частью любой системы, работающей под высоким давлением. Правильный выбор предохранительного устройства, профессиональный монтаж, своевременное обслуживание и устранение неполадок обеспечит бесперебойное функционирование системы на протяжении длительного времени.
Кол-во блоков: 17 | Общее кол-во символов: 15297Количество использованных доноров: 6Информация по каждому донору:
- https://arxipedia.ru/oborudovanie/tipy-i-ustrojstvo-predoxranitelnyx-klapanov.html: использовано 4 блоков из 5, кол-во символов 3084 (20%)
- https://upi.tiu.ru/a136347-klapan-predohranitelnyj-printsip.html: использовано 1 блоков из 8, кол-во символов 2293 (15%)
- https://ru.wikipedia.org/wiki/%D0%9F%D1%80%D0%B5%D0%B4%D0%BE%D1%85%D1%80%D0%B0%D0%BD%D0%B8%D1%82%D0%B5%D0%BB%D1%8C%D0%BD%D1%8B%D0%B9_%D0%BA%D0%BB%D0%B0%D0%BF%D0%B0%D0%BD: использовано 1 блоков из 8, кол-во символов 791 (5%)
- https://ZnatokTepla.ru/truby/osnovnye-tipy-predohranitelnyh-klapanov-i-ih-primenenie.html: использовано 3 блоков из 6, кол-во символов 5765 (38%)
- https://saz-avangard.ru/poleznaya-informatsiya/klapan-predokhranitelnyy-vse-o-tipakh-printsipe-raboty-i-ustroystve/: использовано 3 блоков из 6, кол-во символов 2285 (15%)
- http://www.metalstanki.com.ua/naznachenie-princup-raboty-predohranitelnogo-klapana: использовано 1 блоков из 3, кол-во символов 1079 (7%)
|
Поделитесь в соц.сетях: |
Оцените статью: |
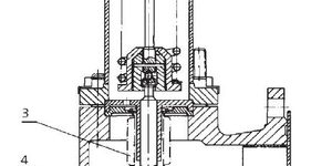
Устройство клапана
Конструктивными элементами клапанов для предохранения от излишнего давления являются следующие основные элементы:
- корпус
- крышка
- колпак
- затвор
- шток и пружина на нем
- устройство для открытия клапана под «принуждением»
В корпусе на резьбе монтируется так называемое «седло». На него устанавливается золотник. Он фиксируется на оси клапана при помощи направляющей втулки. Седло вместе с золотником образуют затвор. В золотник вставляется шток. Он прижимает золотник к седлу за счет усилия пружины. Степень сжатия пружины регулируется нажимным винтом с контргайкой.
В колпаке размещено устройство принудительного открытия клапана. Оно состоит из рычага, который закрепляется на оси с вилкой. Для полного и быстрого открытия клапана предусмотрено специальное поджимное кольцо. Оно фиксируется отворотом стопорного винта.
Устройство принудительного открывания необходимо для проведения проверки работоспособности оборудования время о времени. Детали предназначенного для использования в жидкостях и газах оборудования покрываются специальным антикоррозийным составом.
Предохранительные клапаны в обязательном порядке проходят ревизию и проверку в специализированных лабораториях. Или непосредственно на месте применения (в случаях невозможности отправить прибор на обследование в лабораторию). Проверяется работоспособность оборудования, целостность деталей, качество уплотнителей. Срок проверки устанавливает организация с соответствующими полномочиями. Ревизия осуществляется по графику. Но не реже одного раза в год. Нужно это в первую очередь для того, чтобы ваша система отопления могла функционировать нормальным образом.
Качество оборудования регламентируется Государственными Стандартами, Техническими Условиями и различными отраслевыми указаниями.
Принцип работы
Принцип работы предохранительного клапана достаточно прост. Он заключается в следующем:
Когда давление достигает того значения давления, при котором происходит срабатывание клапана, он мгновенно и полностью открывается. При этом избыток газа стравливается в газоотводящую линию. Сброс среды прекращается, когда после снижения давления в сосуде золотник возвращается в исходное положение.
Все клапаны, как аварийная арматура, должны быть надежными и иметь четкость срабатывания. При этом обязательны:
- быстрое открывание при наступлении порога срабатывания
- достаточная пропускная способность (не ниже необходимой)
- исключение утечки и полная герметичность
- обязательное, и без задержек закрытие при снижении напора
Классификация оборудования
Существуют следующие виды предохранительных клапанов:
- Клапан пружинный.
- Клапан мембранный.
- Клапан обратный.
Предохранительный клапан пружинного типа является наиболее распространенным. Особенно часто применяется в системах при отоплении и горячем водоснабжении. Его основными преимуществами являются сравнительно простая конструкция и легкое регулирование.
Двухпозиционные агрегаты, клапаны прямого и непрямого действия – это разновидности оборудования пружинных предохранительных клапанов.
Существуют механизмы рычажного типа, которые тоже защищают систему от чрезмерно повышенного давления. Они состоят из золотника и груза. Так же в них есть рычаг. Эти устройства очень громоздкие. Поэтому применяются на трубах с диаметром более 50 сантиметров.
Предохранительные клапаны мембранного типа имеют в своей конструкции мембрану. Это ее основной элемент. Принцип действия состоит в разрыве мембраны. Разрыв происходит при повышении напора до критического уровня.
Такие клапаны герметичные, простые в изготовлении. И отличаются быстротой срабатывания. Но они требуют смены мембраны после каждого срабатывания. По этой причине рядом с мембранным клапаном всегда ставят пружинное устройство. Мембранные предохранительные клапаны бывают двух видов:
- с разрывной мембраной
- с хлопающей мембраной
Первый тип применяется в жидкостях и газообразных средах. Мембрана имеет форму купола, и бывает плоская форма мембраны. С изменением силы давления мембрана разрывается.
Второй вид мембранного клапана используется в рабочих средах с газообразным состоянием. При изготовлении мембраны используют специальную ткань из каучука. Вверху и внизу такой мембраны предусмотрены ножи.
Если давление повышается или понижается до определенных пределов, мембрана только выгибается. А если давление изменяется до критической отметки, мембрана касается ножей, и разрезается. Или, при недостаточном давлении, происходит пополнение запасов пара от дополнительной емкости. Таким образом происходит защита труб от перепадов давления при помощи мембранного предохранительного клапана.
Обратный предохранительный клапанустанавливается при использовании водонагревательного оборудования. Он необходим для предотвращения повышения рабочего давления внутри нагревательных приборов.
При определенных условиях в системах отопления и водоснабжения жидкость может начать течь в обратном направлении. Довольно частый пример – это когда горячая вода передавливает холодную или наоборот. Для таких случаев необходим обратный предохранительный клапан.
Маркировка устройств
Предохранительные клапаны подлежат обязательной маркировке. На корпус предохранительного клапана наносятся:
- обозначение изделия
- стрелка, которая указывает направление потока среды
- значение номинального давления
- значение номинального диаметра клапана
- заводской номер клапана
- дата изготовления
Маркировочную табличку прикрепляют, как правило, к крышке клапана или к наружной поверхности выходного фланца
Установка предохранительных клапанов
Предохранительные клапаны после установки должны быть доступны для обслуживания. Клапаны закрытого типа монтируются внутри помещений; открытого типа-на воздухе вне помещений.
При установке предохранительных клапанов следует обращать внимание на то, чтобы они непосредственно сообщались с паром в защищаемом сосуде. Если это невозможно, установку следует производить на трубопроводе или специальном отводе в максимальном приближении к сосуду. Монтаж дополнительных приспособлений между сосудом и клапаном запрещен.
Когда давление сбрасывается в атмосферу, клапаны устанавливаются на высоте 6-30 метров над землей и не менее трех метров над уровнем зданий.
Предохранительные клапаны, как правило, устанавливаются в вертикальном положении. При этом нижний фланец клапана присоединяется к защищаемому оборудованию. А боковой выходной-к газоотводящей линии.
Предохранительные клапаны устанавливаются в соответствии со схемами установки. В схемах указывается число клапанов, их сечение, тип или марка изделия. Чаще всего клапаны монтируются в верхней точки системы отопления (кроме обратного).
При установке нужно следить, чтобы диаметр штуцера аппарата не был меньше диаметра приемного патрубка клапана. При установке системы аппаратов без запорной арматуры разрешается установка одного клапана на всю группу устройств.
Если в процессе эксплуатации сантехнического оборудования предусматривается остановка всех устройств в системе на долгое время, необходима установка двух клапанов. Каждый из них должен быть с пропускной способностью, достаточной для всей системы. А переключатель должен быть настроен на отключение обоих клапанов не совместно, а поочередно.
Условия эксплуатации клапанов
После проверки и ревизии клапаны настраиваются и проходят необходимую регулировку на заданное давление. Затем прибор пломбируют. Установка без пломбы категорически запрещена. Все предохранительные клапаны имеют технологический паспорт или «карточки эксплуатации».
Срок эксплуатации предохранительный клапанов напрямую зависит от правильной эксплуатации и обслуживания. Часто в процессе эксплуатации возникают различные дефекты.
Среди них такие распространенные дефекты:
- утечка
- пульсация
- задиры
Утечка характеризуется пропуском рабочей среды. Возникает при повреждении уплотнителей и попадании на них посторонних предметов. А так же при деформации пружины. Устраняется продувкой, притиркой, заменой пружины, правильным монтажом или новой регулировкой клапана.
Пульсация-слишком частое открытие/закрытие. Возникает при суженом сечении или большой пропускной способности. Устраняется проблема правильным подбором необходимых параметров.
Задиры во время эксплуатации возникают в результате перекосов при сборке. Устраняются при помощи механической обработки и дальнейшей правильной сборкой.
Условия хранения
Место хранения приборов должно находиться в сухом закрытом помещении. Приборы располагаются в вертикальном положении на специальных подкладках. Их помещают в ящики или стеллажи, которые обеспечивают вертикальное расположение.
При этом все детали должны быть смазаны и завернуты в промасленную бумагу.
Штуцеры в режиме хранения должны быть в плотно закрытом состоянии.
Читайте так же:
Главная / Автоматика котлов
Предохранительный клапан для котла предупреждает аварийную опасность. Это происходит, когда происходит перегрев воды и растёт давление, в результате чего разрывается магистраль или обшивка теплогенератора. Поэтому следует знать как правильно выбрать, установить и настроить этот важный элемент котла.
Устройство и принцип действия клапана

Устройство предохранительного клапана:
- защитной крышки;
- выпускного отверстия;
- пломбы;
- пружины сжатия;
- конуса;
- седла;
- напорной камеры.
Виды предохранительных клапанов
Данные элементы защиты классифицируют по-разному.
| Принцип работы | Высота подъёма затвора | Способ открытия затвора | Способ нагружения золотника | |
| 1 | Прямого действия | Малоподъёмные | Пропорциональные | Пружинные |
| 2 | Непрямого действия | Полноподъёмные | Двухступенчатые | Рычажно-газовые |
| 3 | Импульсные |
Пружинные – самые распространённые, используются для котельных небольшого размера. Они имеют простую и надёжную конструкцию и возможность лёгкой регулировки рабочего давление в системе. Также из преимуществ можно выделить низкую стоимость.Рычажные предохранительные устройства не пользуются особой популярностью, потому что, в основном, модельный ряд представлен диаметрами от 50 мм. Их используют в промышленной сфере.Импульсные устройства используют на паровых котлах с давлением больше 39 кгс/кв.см (3,9 МПа). На каждый котел устанавливают, как минимум, по 2 шт. (контрольный и рабочий).Малоподъёмные имеют высоту подъёма затвора от 5% от диаметра седла, поэтому имеют низкую пропускную способность. Из достоинств можно выделить: несложную конструкцию, доступную цену.

В полноподъёмных затвор поднимается на высоту не менее 25% диаметра седла. Их относят к двухступенчатым. Характеризуются большой пропускной способностью, высокой стоимостью и сложной конструкцией.
Из преимуществ использования пропорционального клапана можно выделить:
- открытие затвора согласно необходимости;
- лёгкую конструкцию;
- низкую стоимость;
- автоматически возникают колебания.
Двухступенчатые предохранительные устройства открывают затвор мгновенно. Их запрещено устанавливать в контуре ГВС, так как это приводит к падению давления в системе, а после этого устройство мгновенно закрывается, провоцируя гидравлический удар.
Недостаток двухступенчатых устройств – автоколебание затвора. Причина этого – превышение типоразмера или переменный аварийный расход среды.
Как выбрать надежный клапан
В проекте отопительной системы нужно чётко определять предельные допустимые значения давления. Также учитывается продуктивная способность бойлера или насоса, объём, особенности циркуляции температуры рабочей среды. Исходя из этого подбирается тип и конструктивные особенности. Из ранее перечисленных видов пользователям рекомендуется использовать пружинные предохранительные клапаны. Они отлично подойдут для котлов с небольшой мощностью. Также используют устройства с низким или средним подъёмом для водогрейных систем.

Запрещено устанавливать защитное устройство с завышенным порогом срабатывания. Оно не сработает, когда это необходимо.
Место установки предохранительных клапанов
При выборе места для установки предохранительных устройств необходимо соблюдать ряд правил:
- Импульсные клапаны нужно монтировать в закрытых помещениях, при этом учитывать для какого климата они предназначены (умеренного или тропического).
- Для обслуживания, ремонта, сборки и разборки изделий рекомендуется организовать так место, чтобы эти действия были без вырезки из системы водопровода.
- Выполнять установку, соблюдая проектные рабочие чертежи.
- Главный клапан монтируют приваривая к штуцеру только вверх вертикально. Возможно отклонение, но не больше 0,2 мм на 100 мм высоты защитного устройства.
- При приваривании исключить возможность попадания в его полость брызг, грата, окалины.
- Швы после варки нуждаются в термообработке, основываясь на требования действующей инструкции по монтажу оборудования системы водопровода.
- На трубах, которые подходят к клапану и трубопроводах сброса напора, запрещено устанавливать запорные устройства и фильтры.
- Рычаг клапана устанавливается горизонтально.
- Для того, чтобы контролировать напор, перед фитингом нужно поставить манометр.
- Клапан для системы отопления можно монтировать в нескольких местах трубопровода.
Настройка предохранительных клапанов
Настройку защитных устройств выполняют после установки и промывки системы.
Проверка предохранительных клапанов проходит в несколько этапов:
- Настройка давления, которое устанавливается немного выше предельного рабочего давления.
- Проверка напора при открытии, оно не должно превышать минимальное. Соответствует нормальному режиму работы. Настроить давление в пружинном предохранительном клапане можно с помощью вращения регулирующего винта, который сжимает пружину. Рычажной настраивается изменением массы груза.
- Проверка полного открытия и закрытия.
Периодичность проверки предохранительных клапанов – 1 раз в квартал.
После всех манипуляций по настройке обязательно следует пломбировка, присвоение номера и нанесение его на корпус защитного устройства (или на табличку, приваривается она к корпусу клапана на ней указывается: место монтажа, давление), составить эксплуатационную карточку или технологический паспорт.
Акт настройки
Акт настройки предохранительного клапана– обязательный документ. Его пишут на каждый клапан. Форму акта можно корректировать.
Если меняются условия регулировки устройства, то обязательно вносятся записи в документ. В акте нужно заполнять все пункты. Если нет отдельных данных, пишут: «Данные не требуются». В акте также указывается комиссия, которая принимает готовность устройства к работе. В конце документа являются обязательным подписи членов этой комиссии.
Скачать образец акта.
Используемые источники:
- https://znatoktepla.ru/truby/osnovnye-tipy-predohranitelnyh-klapanov-i-ih-primenenie.html
- https://stankiexpert.ru/tehnologicheskaya-osnastka/zapchasti/predokhranitelnyj-klapan.html
- https://intehstroy-spb.ru/osnastka/naznachenie-predohranitel-nogo-klapana-davleniya.html
- https://eurosantehnik.ru/predoxranitelnyj-klapan-dlya-sistem-otopleniya-chto-eto-takoe.html
- https://kotle.ru/avtomatika/predohranitelnyj-klapan-dlya-kotla









Установка манометра на трубопровод
Установка оборудования в котельной






