<index>В любой здании, в том числе и в частном доме, присутствует несколько систем жизнеобеспечения. Одна из них – это отопительная система. В частных домах могут использоваться разные системы, которые выбираются в зависимости от размеров постройки, количества этажей, особенностей климата и других факторов. В данном материале мы подробно разберем, что представляет собой тепловой узел отопления, как он работает и где используется. Если у вас уже стоит элеваторный узел, то вам будет полезно узнать про дефекты и способы их устранения.
Простыми словами, тепловой узел представляет собой комплекс элементов, служащих для соединения тепловой сети и потребителей тепла. Наверняка у читателей возник вопрос, можно ли установить этот узел самостоятельно. Да, можно, если вы умеете читать схемы. Мы рассмотрим их, причем одна схема будет разобрана подробно.Содержание
Принцип работы
Чтобы понять, как работает узел, необходимо привести пример. Для этого мы возьмем трехэтажный дом, так как элеваторный узел применяется именно в многоэтажных домах. Основная часть оборудования, которая относится к этой системе, расположена в подвальном помещении. Лучше понять работу нам поможет схема ниже. Мы видим два трубопровода:
- Подающий.
- Обратный.
Теперь нужно найти на схеме тепловую камеру, через которую вода отправляется в подвальное помещение. Также можно заметить запорную арматуру, которая должна в обязательном порядке стоять на входе. Выбор арматуры зависит от типа системы. Для стандартной конструкции используют задвижки. Но если речь идет о сложной системе в многоэтажном доме, то мастера рекомендуют брать стальные шаровые краны.При подключении теплового элеваторного узла необходимо придерживаться норм. В первую очередь это касается температурных режимов в котельных. При эксплуатации допускаются следующие показатели:
- 150/70°C;
- 130/70°С;
- 95(90)/70°C.
Когда температура жидкости находится в пределах 70-95°C, она начинает равномерно распределяться по всей системе за счет работы коллектора. Если же температура превышает 95°C, элеваторный узел начинает работать на ее понижение, так как горячая вода может повредить оборудование в доме, а также запорную арматуру. Именно поэтому в многоэтажных домах используется такой тип конструкции – он контролирует температуру автоматически.
Разбор схемы
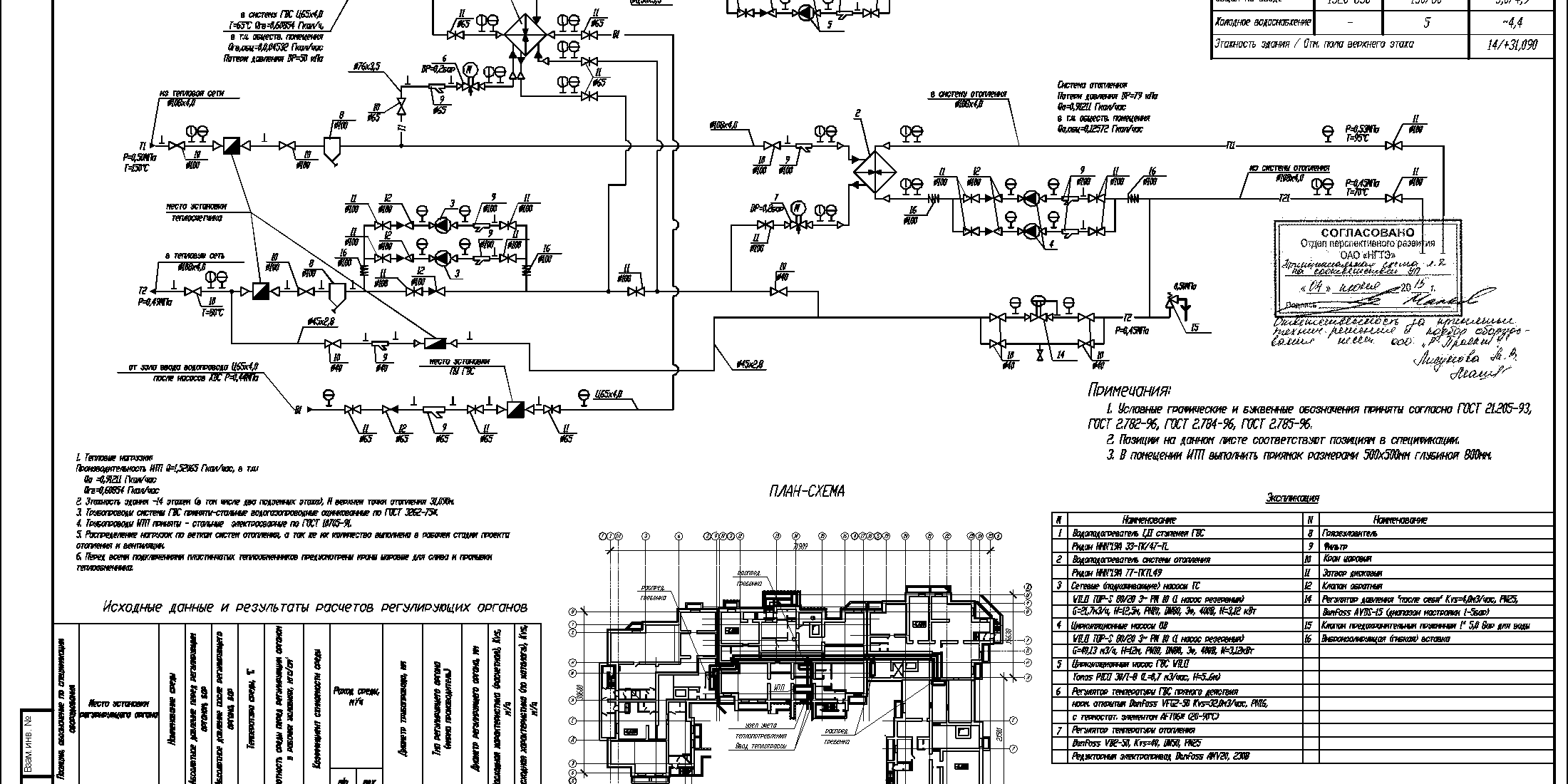
Как вы поняли, узел состоит из фильтров, элеватора, контрольно-измерительных приборов и арматуры. Если вы планируете самостоятельно заниматься установкой этой системы, то стоит разобраться со схемой. Подходящим примером будет многоэтажка, в подвальном помещении которой всегда стоит элеваторный узел. На схеме элементы системы отмечены цифрами:1, 2 – этими цифрами обозначены подающий и обратный трубопроводы, которые установлены в теплоцентрали.3,4 – подающий и обратный трубопроводы, установленные в системе отопления постройки (в нашем случае это многоэтажный дом).5 – элеватор.6 – под этой цифрой обозначены фильтры грубой очистки, которые также известны как грязевики.7 – термометры8 – манометры.В стандартный состав этой системы отопления входят приборы контроля, грязевики, элеваторы и задвижки. В зависимости от конструкции и назначения, в узел могут добавляться дополнительные элементы.
Интересно! Сегодня в многоэтажных и многоквартирных домах можно встретить элеваторные узлы, которые оснащены электроприводом. Такая модернизация нужна для того, чтобы регулировать диаметр сопла. За счет электрического привода можно корректировать тепловой носитель.</p>Стоит сказать, что с каждым годом коммунальные услуги дорожают, это касается и частных домов. В связи с этим производители систем снабжают их устройствами, направленными на сбережение энергии. К примеру, теперь в схеме могут присутствовать регуляторы расхода и давления, циркуляционные насосы, элементы защиты труб и очистки воды, а также автоматика, направленная на поддержание комфортного режима.
Также в современных системах может быть установлен узел учета тепловой энергии. Из названия можно понять, что он отвечает за учет потребления тепла в доме. Если это устройство отсутствует, то не будет видна экономия. Большинство владельцев частных домов и квартир стремятся поставить счетчики на электроэнергию и воду, ведь с ними платить приходится значительно меньше.
» alt=»»>
Характеристики узла и особенности работы
По схемам можно понять, что элеватор в системе нужен для охлаждения перегретого теплоносителя. В некоторых конструкциях присутствует элеватор, который может и нагревать воду. Особенно такая система отопления актуальна в холодных регионах. Элеватор в этой системе запускается только тогда, когда остывшая жидкость смешивается с горячей водой, поступающей из подающей трубы.
По этой схеме можно понять, что узел значительно повышает эффективность работы всей системы отопления в доме. Он работает одновременно как циркуляционный насос и смеситель. Что касается стоимости, то обойдется узел достаточно дешево, особенно тот вариант, который работает без электроэнергии.
Но любая система имеет и недостатки, коллекторный узел не стал исключением:
- Для каждого элемента элеватора нужны отдельные расчеты.
- Перепады компрессии не должны превышать 0,8-2 Бар.
- Отсутствие возможности контролировать высокую температуру.
Как устроен элеватор
В последнее время элеваторы появились в коммунальном хозяйстве. Почему же выбрали именно это оборудование? Ответ прост: элеваторы остаются стабильными даже в том случае, когда в сетях происходят перепады гидравлического и теплового режимов. Состоит элеватор из нескольких частей – камеры разряжения, струйного устройства и сопла. Также можно услышать про «обвязку элеватора» – речь идет о запорной арматуры, а также измерительных приборов, которые позволяют поддерживать нормальную работу всей системы.Как было упомянуто выше, сегодня используются элеваторы, оснащенные электроприводом. За счет электрического привода механизм автоматически контролирует диаметр сопла, как результат, в системе поддерживается температура. Использование таких элеваторов способствует уменьшению счетов за электроэнергию.
Конструкция оснащена механизмом, который вращается за счет электрического привода. В более старых версиях используется зубчатый валик. Предназначен механизм для того, чтобы дроссельная игла можно двигать в продольном направлении. Таким образом меняется диаметр сопла, после чего можно изменить расход теплового носителя. За счет этого механизма расход сетевой жидкости можно снизить до минимума или повысить на 10-20%.
Возможные неисправности
Частой неисправностью можно назвать механическую поломку элеватора. Это может произойти из-за увеличения диаметра сопла, дефектов запорной арматуры или засорения грязевиков. Понять, что элеватор вышел из строя, довольно просто – появляются ощутимые перепады температуры теплового носителя после и до прохода через элеватор. В случае, если температура небольшая, то устройство просто засорилось. При больших перепадах требуется ремонт элеватора. В любом случае, при появлении неисправности требуется диагностика.Сопло элеватора довольно часто засоряется, особенно в тех местах, где вода содержит множество добавок. Этот элемент можно демонтировать и прочистить. В случае, когда увеличился диаметра сопла, необходима корректировка или полная замена этого элемента.
К остальным неисправностям можно отнести перегревы приборов, протечки и прочие дефекты, присущие трубопроводам. Что касается грязевика, то степень его засорения можно определить по показателям манометров. Если давление увеличивается после грязевика, то элемент нужно проверить.» alt=»»>
</index>Всем привет! Меня зовут Виктор и это мой первый пост на Гиктаймс, прошу не судить строго. Сам по жизни я веб-программист, но помимо прочего, я еще и член правления ТСЖ, и посему активно занимаюсь вопросами ЖКХ. ЖКХ в России застряло в 80х годах прошлого столетия, хотя технологии ЖКХ давным давно ушли вперед. Если сообщество будет не против, буду периодически делиться с Вами практическими мыслями и информацией по теме ЖКХ, что и как можно сделать, чтобы хотя бы в рамках своего дома сдвинуть ситуацию с мертвой точки.
Как работает система центрального отопления
  В большинстве домов нашей необъятной Родины, которая к слову на 2/3 состоит из вечной мерзлоты, тепло в квартиры поступает от ТЭЦ, и называется это гордым словом «центральное отопление». Об этом мы сегодня и поговорим. ТЭЦ нагревает теплоноситель и по трубам, как по кровеносным сосудам, через весь город тепло поступает к вам в дом: сначала в тепловой узел, который как правило расположен в подвале, а затем и в батареи Вашей квартиры. Отдавая тепло, теплоноситель остывает и через так называемую обратку, уходит назад на ТЭЦ. Кстати, как правило теплоноситель — это обычная вода с добавлением присадок, которые предотвращают отложения в батареях отопления и трубах.  Тут кстати, есть очень важный нюанс, о котором как показала моя практика даже многие сантехники не подозревают. В тепловом узле есть элеваторный узел, изобретение 19 века, но увы до сих пор повсеместно применяемое. 
Тепловой вычислитель
  Практически в каждом доме уже стоит специальный прибор, именуемый тепловым вычислителем. Его задача посчитать, сколько тепла забрал Ваш дом. К сожалению, в силу исторических причин, когда все у нас был общее, а стало быть ничье, мы не привыкли считать расходы на отопление. А тем временем, сегодня отопление — это самая дорогая графа расходов в платежках. Причем из-за того, что исторически отопление в нашей стране никто не считал — эта сфера теперь самая взяткоемкая и крайне неэффективная. И чтобы как-то ситуацию исправить, каждый, кого интересует, что за цифры им выставляют в коммунальных платежках обязан запомнить и понять главную формулу в ЖКХ: 

Рисуем графики
Теперь когда данные у нас в Excel, можно рисовать графики и делать какие-то выводы. О, как много можно увидеть на графиках! Например, на первом графике два проседания по объему теплоносителя (верхние темно-синяя и серая линии), проходящего через дом, это вероятнее всего аварии труб в районе. Как раз совпадает с ростом температуры подачи (морозы!) Правая ось — это Q, показывающая тепло в гигакалориях посуточно. Как я уже сказал по тарифу 1 Гигакалория во Владимире стоит 1987,40 руб. На графике Гигакалории отмечены желтой линией. Вот сколько за месяц гигакалорий дом накопит, эта сумма умножается на 1987,40 руб, затем разбивается по квартирам и вы ее платите в своих квитанциях за коммуналку. Красная и синяя линии — это температура подачи, и температура обратки. Значения на левой шкале. Зеленая линия — это дельта, т.е. та температура, сколько ваш дом забрал на обогрев. Как видите температура подачи в морозы выше 100 градусов. И если прорвет — это опасно для жизни! Можно заметить, что несмотря на скачущую температуру подачи, температура обратки всегда примерно одинаковая. Это интересный феномен. Кто-нибудь знает почему? У меня есть версия, но пока оставлю ее при себе, гоу в комменты! 🙂 Обидно на самом деле, не получается экономить на очевидном, на разнице температур. Темно-синяя и серая линии — это объем теплоносителя проходящий в час через вход и выход соответственно. У нас почему-то уходит немного больше, чем приходит. Либо погрешность измерения, либо что-то где-то течет… Буду разбираться в этом вопросе. А второй рисунок — это почасовое потребление, за последние сутки. Здесь в основном все пики в гигакалориях (оранжевая линия) связаны с жизнью дома. В 7 утра встают, в 12 обед, в 17 ужин, и в районе 9-10 вечера все принимают душ и активно льют горячую воду. Дисциплинированные какие соседи у меня! 🙂 Ну вот теперь, когда есть возможность отслеживать потребление тепла многоквартирным домом, можно поднимать вопрос об энергоэффективности. Первым делом я планирую обернуть все трубы в доме в энергофлекс, а также установить погодозависимую автоматику, выкинуть из схемы доисторический узел элеватора, поставить современный трехходовой клапан, которым можно управлять автоматически или через Интернет. Все это дело я провожу с тепловизионным контролем. Про тепловизор я думаю также опубликую несколько постов, если аудитория примет данную тематику. Ну и в целом, планирую в плотную заняться вопросом энергосбережения, так как на текущий момент показания энергопотребления дома крайне высокие, что мы отчетливо и видим на графике.20865,6k 208
Приветствую всех, кто читает мой блог! Сегодня я хочу предложить вам еще одну статью, которая посвящена отоплению. В этой статье я расскажу вам о странном месте в подвале вашего дома, которое называется тепловой пункт (или тепловой узел). Статья имеет своей целью дать вам общее представление о том, что такое тепловой узел, как он работает и зачем нужен. Разбираться в этих вопросах начнем с самого фундаментального из них.
Зачем нужен тепловой узел?
Тепловой пункт находится на вводе теплотрассы в дом. Главное его назначение — изменение параметров теплоносителя. Если говорить понятнее, то тепловой узел снижает температуру и давление теплоносителя перед тем как он попадет в ваш радиатор или конвектор. Нужно это не только для того, чтобы вы не обожглись от прикосновения к прибору отопления, но и для продления срока службы всего оборудования системы отопления. Особенно это важно, если внутри дома отопление разведено при помощи полипропиленовых или металлопластиковых труб. Существуют регламентированные режимы работы тепловых узлов:
- 150/70
- 130/70
- 110/70
Эти цифры показывают максимальную и минимальную температуру теплоносителя в теплотрассе.
Также, по современным требованием на каждом тепловом узле должен быть установлен прибор учета тепла. Теперь перейдем к устройству тепловых узлов.
Как устроен тепловой узел?
Вообще, техническое устройство каждого теплового пункта проектируется отдельно в зависимости от конкретных требований заказчика. Существует несколько основных схем исполнения тепловых пунктов. Давайте рассмотрим их по очереди.
Тепловой узел на основе элеватора.
Схема теплового пункта на основе элеваторного узла является наиболее простой и дешевой. Главный ее недостаток — невозможность регулировать температуру теплоносителя в трубах. Это вызывает неудобства у конечного потребителя и большой перерасход тепловой энергии в случае оттепелей во время отопительного сезона. Давайте посмотрим ниже на рисунок и разберемся в том, как работает эта схема:
Кроме того, что указано выше, в составе теплового узла может быть редуктор понижения давления. Он устанавливается на подаче перед элеватором. Элеватор является главной деталью этой схемы, в которой осуществляется подмешивание остывшего теплоносителя из «обратки» к горячему теплоносителю из «подачи». Принцип работы элеватора основан на создании разряжения на его выходе. В результате этого разряжения, давление теплоносителя в элеваторе оказывается меньше, чем давление теплоносителя в «обратке» и происходит смешение.
Тепловой узел на основе теплообменника.
Тепловой пункт, подключенный через специальный теплообменник позволяет разделять теплоноситель из теплотрассы от теплоносителя внутри дома. Разделение теплоносителей позволяет производить его подготовку при помощи специальных присадок и фильтрации. При такой схеме появляются широкие возможности в регулировании давления и температуры теплоносителя внутри дома. Это позволяет снизить затраты на отопление. Для того, чтобы иметь наглядное представление о такой конструкции посмотрите ниже на рисунок.
Подмешивание теплоносителя в таких системах делается при помощи термостатических клапанов. В таких системах отопления в принципе можно применять алюминиевые радиаторы отопления, но долго они прослужат только при хорошем качестве теплоносителя. Если PH теплоносителя будет выходить за рамки одобренные производителем, то срок службы алюминиевых радиаторов может сильно сократиться. Качество теплоносителя вы контролировать не можете, поэтому лучше перестраховаться и установить биметаллические или чугунные радиаторы.
ГВС может быть подключена подобным образом через теплообменник. Это дает такие же преимущества по части регулирования температуры и давления горячей воды. Стоит сказать, что недобросовестные управляющие компании могут обманывать потребителей при помощи занижения температуры горячей воды на пару градусов. Для потребителя это почти не заметно, но в масштабах дома позволяет экономить десятки тысяч рублей в месяц.
Итоги статьи.
В этой статье я кратко рассказал вам о тепловых узлах. Это, конечно, не полная информация по этой очень обширной теме, но в качестве начальных знаний вполне подойдет. Могу сказать, что тепловые узлы в наше время устанавливают не только на многоквартирные, но и на частные дома, если они подключаются к центральному отоплению. Такое решение требует первоначальных затрат, но в последующем увеличит комфортность проживания в частном доме. На этом все, пишите свои вопросы в комментариях и пользуйтесь кнопками социальных сетей, чтобы поделиться статьей с друзьями. До свидания!
Одной из ключевых частей теплотрассы является тепловой узел. Схема теплового узла, устройство и принцип действия могут показаться новичку чем-то непонятным, но обладая минимальными знаниями, можно полностью разобраться в этих тонкостях, что поможет в будущем обустроить высокоэффективную отопительную магистраль. В первую очередь следует рассмотреть базовые моменты.
1 Общая информация</span></h2>
Тепловой пункт расположен у входа теплотрассы в помещение. Основная его задача заключается в изменении рабочих параметров жидкости-теплоносителя, а если быть точным — в снижении температуры и давления воды перед ее попаданием в радиатор или конвектор. Такой процесс необходим не только для повышения безопасности жильцов и предотвращения возможного обжигания при контакте с батареей, но и для увеличения эксплуатационных сроков всего оборудования. Функция незаменима в тех случаях, если в здании имеются полипропиленовые или металлопластиковые трубы.
В соответствующей документации указаны регламентированные режимы работы подобных узлов. Они указывают на верхний и нижний порог температур, до которых может прогреваться теплоноситель. Также согласно современным стандартам на каждом узле должен присутствовать датчик тепла, определяющий текущие показатели жидкости, с которой работает теплоузел.
Схема, принцип работы и устройство теплового оборудования могут зависеть от нескольких особенностей, включая проект, который создавался с учетом индивидуальных требований заказчиков. Среди существующих типов тепловых узлов, особым спросом пользуются модели на основе элеватора. Такая схема характеризуется особой простотой и доступностью, но с ее помощью нельзя менять температуру жидкости в трубах, что доставляет потребителю массу неудобств. Главная проблема — чрезмерный расход тепловых ресурсов при временных оттепелях во время отопления.
В системе тепловых узлов на основе элеватора может присутствовать редуктор пониженного давления, который расположен непосредственно перед элеватором. Сам элеватор осуществляет подмешивание остывшей жидкости из обратной трубы к прогретому теплоносителю, достигшему подающего контура.
Принцип действия узла базируется на создании разряжения в месте выхода, что существенно снижает давление воды и запускает процесс смешивания.
‘ >Как работает элеваторный узел отопления / How does the Elevator unit heatingРекомендуемПрименение элеваторного узла системы отопления
2 Устройство системы и требования к монтажу</span></h2>
Устройство теплового узла подразумевает массу составляющих, которые взаимозависимы и функционируют для одной общей цели.
В числе основных элементов системы:
- 1. Запорная арматура.
- 2. Тепловой счетчик.
- 3. Грязевик.
- 4. Датчик расхода теплоносителя.
- 5. Тепловой датчик обратного трубопровода.
- 6. Дополнительное оборудование.
В зависимости от индивидуальных особенностей объекта система может оснащаться дополнительными датчиками и другими узлами. Что касается монтажа, то он должен выполняться с учетом определенных правил и требований:
- 1. Установка схемы должна происходить непосредственно у границ раздела балансовой принадлежности.
- 2. Использовать теплоноситель из общей коммунальной системы для индивидуальных нужд категорически запрещено.
- 3. Для контроля среднечасовых и среднесуточных показателей необходимо учитывать рабочие свойства учетного оборудования.
- 4. Любые датчики и учетные устройства фиксируются на трубопроводе «обратки».
‘ >Узел учёта тепловой энергии. На практике. Устройство многоквартирного дома.РекомендуемСхема подключения коллекторного узла для тёплого пола
3 Модели на базе теплообменника</span></h2>
Существует еще одна разновидность теплового узла частного дома — на основе теплообменника. В таком случае к устройству присоединен специальный теплообменник, который разделяет жидкость из теплотрассы от жидкости в помещении. Подобная функция необходима для дополнительной подготовки теплоносителя с помощью различных присадок и фильтрующих устройств. Схема расширяет возможности в регулировке давления и температурного режима теплоносителя внутри здания. Таким образом затраты на отопление постройки существенно снижаются.
Для подмешивания воды с разной температурой необходимо использовать термостатические клапаны. Подобные системы нормально взаимодействуют с радиаторами из алюминия, но чтобы последние прослужили максимально долго, необходимо тщательно выбирать теплоноситель, отказываясь от низкокачественного сырья. Конечно же, уследить за качеством жидкости проблематично, поэтому лучше отказаться от этого материала, отдав предпочтение биметаллическим или чугунным радиаторам.
Схема подключения ГВС подразумевает использование теплообменника. Такой метод обеспечивает массу плюсов, включая:
- 1. Возможность регулирования температуры воды.
- 2. Возможность изменения давления горячего теплоносителя.
К сожалению, многие управляющие компании не следят за температурой теплоносителя, а иногда даже занижают ее на несколько градусов. Среднестатистический потребитель практически не заметит такие изменения, но в масштабах целого дома — это экономия внушительных сумм денежных средств.
‘ >Теплообменники и блочные индивидуальные тепловые пунктыРекомендуемМонтаж узла прохода вентиляции через кровлю
4 Элеваторные узлы</span></h2>
В многоквартирных и многоэтажных помещениях, административных постройках и других объектах с большой площадью задействуются высокоэффективные ТЭЦ или мощные котельные. В частных коттеджах и небольших домах используются простые автономные системы, которые работают по понятному принципу.
Однако даже с такими установками возникают определенные проблемы, из-за которых становится проблематично проводить настройку или изменение рабочих параметров. А в больших котельных или ТЭЦ схемы такого оборудования гораздо сложнее и крупнее. От центральной трубы расходится масса ответвлений к каждому потребителю. При этом в каждом из них присутствует разное давление, а объемы потребляемого тепла существенно отличаются. Протяженность магистрали бывает разной, поэтому систему нужно проектировать правильно, чтобы самая отдаленная точка получала нужный объем тепловой энергии.
Разница давлений теплоносителя нужна для нормального продвижения теплоносителя по контуру, т. е. оно является естественной альтернативой для насосного оборудования. На этапе проектирования системы необходимо соблюдать установленную схему, иначе повысится риск разбалансировки при изменении объемов потребляемого тепла.
Более того, сильная разветвленность оборудования не должна нарушать эффективность теплоснабжения. Для обеспечения стабильной работы ЦОС (централизованной отопительной системы) нужно оборудовать в каждом помещении персональный элеваторный узел или специальный автоматизированный блок управления.
Конструкции по-особому удобны для всех многоквартирных домов. И если кто-то считает, что можно не использовать такой узел, заменяя его естественной подачей воды с чуть меньшей температурой, то это — глубокое заблуждение, т. к. при отсутствии элеваторного узла появится необходимость увеличить диаметр магистралей для подачи менее горячего теплоносителя. При наличии такой детали появится возможность добавлять в подающую жидкость определенное количество теплоносителя из обратного контура, который уже достаточно остыл.
Тем не менее, есть мнение, что применение элеваторного узла — старый метод, ведь на рынке уже имеются более прогрессивные решения, а именно:
- 1. смеситель с 3-ходовым клапаном;
- 2. пластинчатый теплообменник.
‘ >Что такое элеваторный узел в системе центрального отопления
5 Основные неполадки</span></h2>
К сожалению, даже такое незамысловатое устройство, как элеваторный узел, подвергается различным сбоям и неполадкам. Для определения неисправности необходимо проанализировать показания манометров в контрольных точках.
Одной из ключевых причин повреждения элеваторного узла является большое скопление мусора в трубопроводах. Зачастую этим мусором является грязь и твердые частички в воде. При резком снижении давления в отопительной системе чуть дальше грязевика нужно провести очистку этого резервуара. Грязь сбрасывают с помощью спускных каналов, после чего обслуживают сетки и внутренние поверхности конструкции.
При скачках давления необходимо проверить систему на наличие коррозийных процессов или мусора. Также проблему может вызывать разрушение сопла, в результате чего уровень давления станет слишком высоким.
Еще в работе элеваторных узлов встречаются такие явления, при которых давление начинает расти невероятными темпами, а манометры до и после грязевика отображают одинаковое значение. Если это так, необходимо провести комплексную очистку грязевика обратного контура. Для этого следует открыть краны, очистить сетку и избавиться от всех загрязнений внутри.
Если размеры сопла изменились из-за коррозийных процессов, возможно, произошло вертикальное разрегулирование отопительного контура. В таком случае нижние радиаторы будут прогреваться достаточно хорошо, а верхние останутся холодными. Для устранения неисправности нужно заменить сопло.
6 Распределительный пункт</span></h2>
Опытные инженеры и теплотехники рекомендуют задействовать один из трех режимов работы котельной установки. Такие рекомендации создавались с учетом теоретических данных и математических вычислений, а также были подтверждены многолетним практическим опытом. Каждый из выбранного режима гарантирует высокоэффективную передачу тепла с низким уровнем потерь. При этом на показатели КПД не влияет даже большая протяженность магистрали.
Эти режимы отличаются друг от друга разным соотношением температуры на подающем контуре и обратном:
- 1. 150/70 градусов Цельсия.
- 2. 130/70 градусов Цельсия.
- 3. 95/70 градусов Цельсия.
При выборе оптимального соотношения важно учитывать несколько факторов, включая региональные особенности и среднестатистическую величину зимней температуры воздуха. Если речь идет об отоплении частного дома, лучше отказаться от использования двух первых режимов, которые подразумевают прогрев теплоносителя до 150 и 130 градусов Цельсия. При таких температурах появляется вероятность получения опасных ожогов и других последствий от разгерметизации.
Как известно, жидкость в трубопроводной магистрали разогрета до таких температур, которые превышают точку кипения. Однако она никогда не закипает, что обусловлено соответствующим давлением. При необходимости подобрать оптимальный режим для частной постройки, нужно снизить давление и температуру, для чего и используется элеваторный узел. Сам элемент представляет собой специальное теплотехническое оборудование, которое находится в распределительном пункте.
7 Сферы применения и предназначение</span></h2>
Разобравшись со схемой теплоузла отопления, можно переходить непосредственно к монтажным работам. Как известно, такие установки зачастую используются в многоквартирных помещениях, которые подключены к общей коммунальной отопительной системе.
Тепловые узлы предназначаются для таких задач:
- 1. Проверки и изменения рабочих свойств теплоносителя и теплового потенциала.
- 2. Мониторинга текущего состояния систем отопления.
- 3. Мониторинга и записи основных показателей теплоносителя — текущей температуры, давления и объема.
- 4. Проведения денежных расчетов и составления оптимального плана расходов энергии.
Обустраивая отопительную систему в помещении, нужно понимать, что центральное отопление требует определенных затрат. Если речь идет о многоквартирном здании, то все расходы разделяются на жильцов. Но иногда они бывают неоправданными из-за недобросовестного отношения управляющих компаний и неправильной установки деталей системы.
И чтобы предотвратить существенный финансовый ущерб, важно заранее установить высокоэффективный тепловой узел частного дома, который будет автоматически регулировать любые изменения и подбирать оптимальное соотношение температуры теплоносителя. Только грамотная проверка оборудования и правильное обслуживание позволят обустроить эффективную систему отопления, которая прослужит долгие годы без сбоев.
‘ >Узел учёта тепловой энергии. Введение. Устройство многоквартирного дома.Фото
В процессе эксплуатации могут возникать утечки теплоносителя из контура отопительной системы.


Зависимая схема с двухходовым клапаном и насосами в обратном трубопроводе
От его характеристик во многом зависит регулирование систем отопления и ГВС, а также эффективность использования тепловой энергии. На эффективность работы напрямую влияют колебания гидравлического режима в тепловых сетях.



Элеваторный узел системы отопления – принцип работы
На рисунках ниже указаны самые распространенные схемы соединения тепловых сетей и тепловых пунктов.

Зависимая схема с двухходовым клапаном и насосами в подающем трубопроводе

Часто тепло из системы ГВС используется потребителями для частичного отопления помещений, например ванных комнат в многоквартирных жилых домах. Охлажденная сетевая вода поступает в систему отопления.
Но любая система имеет и недостатки, коллекторный узел не стал исключением: Для каждого элемента элеватора нужны отдельные расчеты. Принципиальная схема ИТП для двух систем отопления при зависимом присоединении к тепловой сети и системы ГВС с непосредственным водоразбором. Изменение просвета меняет скорость движения воды. Суть схемы теплоснабжения Москвы
Особенности работы ЦТП монтаж тепловых пунктов
Отопительную систему подпитывает обратный трубопровод теплосетей. Источники тепла и системы транспорта тепловой энергии[ править править код ] Источником тепла для ТП служат теплогенерирующие предприятия котельные , теплоэлектроцентрали.
Вода, из наружной водопроводной сети подается в подогреватель ГВС.
Компенсация понижения уровня давления осуществляется посредством группы насосов. Просмотрено: Схему ГВС можно обозначить как одноступенчатую, независимую и параллельную.
Режим коррекции — автоматический. Часто тепло из системы ГВС используется потребителями для частичного отопления помещений, например ванных комнат в многоквартирных жилых домах. Расход горячей сетевой воды на подогреватель II-ой ступени регулирует регулятор температуры клапан термореле в зависимости от температуры воды за подогревателем II-ой ступени.
Рекомендуем: Как измеряется петля фаза ноль
Принципиальная схема индивидуального теплового пункта утверждается. Тепловые пункты
Акт на промывку и опрессовку систем тепловые сети, отопительная система и система горячего водоснабжения. ИТП для отопления, горячего водоснабжения и вентиляции. Проектную документацию со всеми необходимыми согласованиями. Все это оборудование должно работать исключительно в автоматическом режиме, поэтому критически важно правильное налаживание всего комплекса оборудования для работы в конкретном доме.
ЦТП должны размещаться на границах микрорайонов кварталов между магистральными, распределительными сетями и квартальными. Одна из них — это отопительная система. При наличии ЦТП в каждом отдельном здании обязательно устройство ИТП, который выполняет только те функции, которые не предусмотрены в ЦТП и необходимы для системы теплопотребления данного здания.
Это устройство можно представить в виде емкости. Но стоимость такого устройства намного выше, хотя его использование более экономично. Расход тепла контролируется и учитывается. После элеватора еще и обратку считать будет.
После элеваторного узла смешанный теплоноситель подается в систему отопления здания. Монтажная компания должна быть членом СРО. Далее, как наиболее распространённый, рассматривается ТП с закрытой системой горячего водоснабжения и независимой схемой присоединения системы отопления. Создание принципиальной схемы индивидуального теплового пункта в AutoCAD P&ID
Используемые источники:
- http://jsnip.ru/vodosnabzheniya/shema-teplovogo-uzla-otoplenija.html
- https://m.habr.com/ru/post/411009/
- https://znayteplo.ru/otoplenie/chto-takoe-teplovoj-uzel-i-kak-on-ustroen/
- https://oventilyacii.ru/otoplenie/teplovoj-uzel-printsip-dejstviya-i-shema-teplovogo-uzla.html
- https://tokzamer.ru/bez-rubriki/principialnaya-shema-itp





-110x80.jpg)


